Найдено 9 результатов

Перейти к расширенному поиску

CH4RLIE
16 дек 2016, 16:11
Форум: Заземление и молниезащита
Тема: Вопрос по системам заземления
Ответы: 220
Просмотры: 33956

Вопрос по системам заземления

Спрошу, в Европе какая система приветствуется: TN-S или ТТ?
CH4RLIE
15 дек 2016, 17:24
Форум: Заземление и молниезащита
Тема: Вопрос по системам заземления
Ответы: 220
Просмотры: 33956

Вопрос по системам заземления

Здравствуйте всем! Просматривал материалы про различные системы заземления и хочу для себя уточнить следующее: система TN-C-S отличается от ТТ главным образом перемычкой между нулевой шинкой и шинкой заземления? То есть если взять ввод 3 ф. + N + PE от повторного заземления, N и PE не объединять - э...
CH4RLIE
08 ноя 2016, 19:44
Форум: Генераторы (бензиновые, дизельные, газовые)
Тема: Проблемы с запуском ДГУ
Ответы: 13
Просмотры: 12725

Проблемы с запуском ДГУ

ПАВ писал(а):Qr Bbpost привозите, разберемся!

Думаю таскать быка по стране не самая лучшая идея :biggrin:
Что касается входов 18 и 19, как я понимаю к ним подключается CAN-шина. Скажите пожалуйста, за что она отвечает и может ли дизель нормально функционировать без нее ?
CH4RLIE
08 ноя 2016, 19:29
Форум: Генераторы (бензиновые, дизельные, газовые)
Тема: Проблемы с запуском ДГУ
Ответы: 13
Просмотры: 12725

Проблемы с запуском ДГУ

Хмм, насколько я знаю, как изначально схема была собрана, так она и работала, никаких изменений не вносилось.
CH4RLIE
08 ноя 2016, 18:10
Форум: Генераторы (бензиновые, дизельные, газовые)
Тема: Проблемы с запуском ДГУ
Ответы: 13
Просмотры: 12725

Проблемы с запуском ДГУ

22982 Кнопка СТОП должна обесточить все. Не боитесь. Даже не знаю... Есть ли вероятность спалить электронику, если запустить дизель напрямую? 22982 Все-таки, что там за провода к контактам платы 18,19 ? Вот что нашел в мануале - dse4500-manual-rus.jpg Почему именно 18 и 19, на модуле к ним ничего н...
CH4RLIE
07 ноя 2016, 20:02
Форум: Генераторы (бензиновые, дизельные, газовые)
Тема: Проблемы с запуском ДГУ
Ответы: 13
Просмотры: 12725

Проблемы с запуском ДГУ

22976 Кратковременно,принудительно,я бы ткнул в реле стартера,а дальше по обстоятельствам! Замыкая напрямую, минуя катушку реле, топливный насос начинает качать, а стартер схватывает. Но завести таким образом движок опасаюсь, а вдруг компьютер не захочет его глушить нажатием кнопки стоп, как же мне...
CH4RLIE
07 ноя 2016, 17:04
Форум: Генераторы (бензиновые, дизельные, газовые)
Тема: Проблемы с запуском ДГУ
Ответы: 13
Просмотры: 12725

Проблемы с запуском ДГУ

Стоят два АКБ, каждый живой, по 13 В на каждом. Питание на стартер не проходит. На последнем изображении видны три релюшки, одна из них на стартер, другая на топливный насос, третья не знаю. При нажатии на кнопку запуска на модуле, компьютер думает и выдает ошибку неудачного старта. При этом питания...
CH4RLIE
05 ноя 2016, 10:50
Форум: Генераторы (бензиновые, дизельные, газовые)
Тема: Проблемы с запуском ДГУ
Ответы: 13
Просмотры: 12725

Проблемы с запуском ДГУ

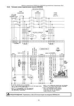
Вот схема с инструкции к модулю
dse4500-manual-rus_028.jpg

podkl.jpg
CH4RLIE
04 ноя 2016, 10:39
Форум: Генераторы (бензиновые, дизельные, газовые)
Тема: Проблемы с запуском ДГУ
Ответы: 13
Просмотры: 12725

Проблемы с запуском ДГУ

Здравствуйте, всех с праздником! Требуется помощь опытных спецов. На работе стоит дизель-генераторная установка FLD-W70, за запуск отвечает модуль автоматического и ручного запуска DSE4520. Имеется щит АВР, в котором установлен автоматический переключатель фирмы Suyang, модель SYK2-100A . Проблема в...

Перейти к расширенному поиску