Щит на 3 фазы. Проверьте, пожалуйста, схему.

Проектирование внутреннего электроснабжения квартир, домов, коттеджей и т.п. Нормы, типовые проекты, расчеты, делимся своими проектами.
Аватара пользователя
saigr
Сообщения: 43
Зарегистрирован: 06 апр 2018, 09:48
Репутация: 2
Откуда: Владивосток
Контактная информация:

Щит на 3 фазы. Проверьте, пожалуйста, схему.

Сообщение saigr » 06 апр 2018, 12:45

TOPMO3 писал(а):Источник цитаты И что будете делать, если вставка "полетит" ... пломбу или попу рвать?

Он без пломбы :smile:
TOPMO3 писал(а):Источник цитаты Просто на свою шину или подключен к "нулю"?

Отдельная шина.
TOPMO3 писал(а):Источник цитаты Работа УЗО, ни как не связана с типом нагрузки ... ответ - будет ... вопрос, нужно ли? Электрофобы ставят везде.

Спасибо! А то пугают, что будет постоянно выбивать...
Реклама
Аватара пользователя
TOPMO3
Сообщения: 4181
Зарегистрирован: 29 фев 2016, 10:37
Репутация: 626
Откуда: Ижевск
Контактная информация:

Щит на 3 фазы. Проверьте, пожалуйста, схему.

Сообщение TOPMO3 » 06 апр 2018, 12:51

saigr писал(а):Источник цитатыСпасибо! А то пугают, что будет постоянно выбивать...
Я не стал бы свет (особенно такой как Вы написали) подключать через УЗО.
Всё зависит от типа блоков питания ... если они электронные, то скорее всего имеют сетевые фильтра, а значит утечку ... суммируясь они могут и заставить реагировать УЗО. Но всё это - имхо.
Смеюсь последний ... тормоз однако!
Аватара пользователя
saigr
Сообщения: 43
Зарегистрирован: 06 апр 2018, 09:48
Репутация: 2
Откуда: Владивосток
Контактная информация:

Щит на 3 фазы. Проверьте, пожалуйста, схему.

Сообщение saigr » 06 апр 2018, 12:58

TOPMO3, я тоже к этому склоняюсь. А если приспичит, то всегда можно поставить УЗО.
Планирую использовать кросс-модули, после счетчика.
Аватара пользователя
Константин
Сообщения: 3464
Зарегистрирован: 16 сен 2015, 10:19
Репутация: 851
Откуда: Новосибирская область
Контактная информация:

Щит на 3 фазы. Проверьте, пожалуйста, схему.

Сообщение Константин » 06 апр 2018, 14:15

elalex писал(а):Источник цитаты 1.По соображениям селективности защиты никаких 3–фазных автоматов (кроме как для моторов) и реле напряжения, любых дифавтоматов быть не должно.

Что?????
Аватара пользователя
elalex
Сообщения: 7423
Зарегистрирован: 21 июл 2015, 08:08
Репутация: 591
Откуда: [email protected]
Контактная информация:

Щит на 3 фазы. Проверьте, пожалуйста, схему.

Сообщение elalex » 06 апр 2018, 20:45

saigr, я даю разные (вплоть до противоположных) советы разным участникам ремонтов. Скажем, советую владельцам гнать электриков и организации, работающие по правилам.
Одиночный свободный электрик
Опыт ремонтов квартир 20лет
Высшее электрическое образование
Бывший инженер-электрик
Пенсионер
64 года
Пишу для владельцев частного жилья
Запасной E–mail для россиян: [email protected]
Аватара пользователя
saigr
Сообщения: 43
Зарегистрирован: 06 апр 2018, 09:48
Репутация: 2
Откуда: Владивосток
Контактная информация:

Щит на 3 фазы. Проверьте, пожалуйста, схему.

Сообщение saigr » 07 апр 2018, 05:45

elalex, вот пример работы, когда чудо-"электрик", делал все на свое усмотрение.
Именно в этом доме и надо привести все в порядок...
Вложения
IMG_20180225_114824.jpg
IMG_20180225_114815.jpg
IMG_20180225_114801.jpg
IMG_20180225_114754.jpg
IMG_20180225_114746.jpg
IMG_20180225_114726.jpg
IMG_20180225_114716.jpg
IMG_20180225_114655.jpg
Аватара пользователя
saigr
Сообщения: 43
Зарегистрирован: 06 апр 2018, 09:48
Репутация: 2
Откуда: Владивосток
Контактная информация:

Щит на 3 фазы. Проверьте, пожалуйста, схему.

Сообщение saigr » 07 апр 2018, 05:47

Вот еще фото...
Вложения
IMG_20180225_115521.jpg
IMG_20180225_115227.jpg
IMG_20180225_115028.jpg
IMG_20180225_114947.jpg
IMG_20180225_114939.jpg
IMG_20180225_114927.jpg
IMG_20180225_114911.jpg
IMG_20180225_114842.jpg
Аватара пользователя
saigr
Сообщения: 43
Зарегистрирован: 06 апр 2018, 09:48
Репутация: 2
Откуда: Владивосток
Контактная информация:

Щит на 3 фазы. Проверьте, пожалуйста, схему.

Сообщение saigr » 07 апр 2018, 05:48

И последний аккорд!
Вложения
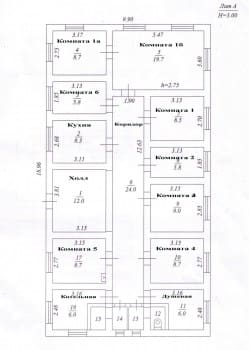
Глазковка план дома.jpg
IMG_20180225_115655.jpg
IMG_20180225_115639.jpg
IMG_20180225_115628.jpg
Аватара пользователя
saigr
Сообщения: 43
Зарегистрирован: 06 апр 2018, 09:48
Репутация: 2
Откуда: Владивосток
Контактная информация:

Щит на 3 фазы. Проверьте, пожалуйста, схему.

Сообщение saigr » 07 апр 2018, 06:03

elalex писал(а):Источник цитаты я даю разные (вплоть до противоположных) советы разным участникам ремонтов. Скажем, советую владельцам гнать электриков и организации, работающие по правилам.

1 - да, надо обязательно вести разводку ВВГ+ШВВП+ПВС, а скрутки сделаем на СИЗах :biggrin:
2 - чем больше распред-коробок, тем лучше! В коридорах их надо делать с интервалом в 1,5-2 метра! ПУЭ - отдыхает :biggrin:
3 - все провода и кабели, в щите, зафигачим в медные наконечники, а т.к у нас нет гидравлического преса, обстучим их молотком :biggrin:
4 - распред коробки обязательно потом замуруем, чтоб никто не видел святого таинства электромонтажа :happy:
5 - на розетки поставим автоматы на 25А, а на освещение - 16А, чтоб 100% ничего не выбивало :good:
6 - шит, обязательно прикрутить на кусок фанеры, чтоб между фанерой и стеной прокладывать кабель!
7 - вознести молитву богу Электронов и возверовать, что ничего не сгорит :cool:
Аватара пользователя
Леопольд
Сообщения: 2199
Зарегистрирован: 05 янв 2016, 14:35
Репутация: 74
Контактная информация:

Щит на 3 фазы. Проверьте, пожалуйста, схему.

Сообщение Леопольд » 07 апр 2018, 06:24

saigr !
Глазковка - это село?
Кандидат в младшие помощники начинающего ученика электрика
Аватара пользователя
saigr
Сообщения: 43
Зарегистрирован: 06 апр 2018, 09:48
Репутация: 2
Откуда: Владивосток
Контактная информация:

Щит на 3 фазы. Проверьте, пожалуйста, схему.

Сообщение saigr » 07 апр 2018, 06:27

Леопольд, да, в Приморском крае.
Аватара пользователя
elalex
Сообщения: 7423
Зарегистрирован: 21 июл 2015, 08:08
Репутация: 591
Откуда: [email protected]
Контактная информация:

Щит на 3 фазы. Проверьте, пожалуйста, схему.

Сообщение elalex » 07 апр 2018, 11:06

Не думаю, что, изучая электрику на коленке, Вам удастся сделать её лучше, чем у того электрика. Более того, Вы не представляете опасности правил и бесполезности некоторых их положений. Скажем, дурного и опасного заземления в этом доме.
Одиночный свободный электрик
Опыт ремонтов квартир 20лет
Высшее электрическое образование
Бывший инженер-электрик
Пенсионер
64 года
Пишу для владельцев частного жилья
Запасной E–mail для россиян: [email protected]
Аватара пользователя
elalex
Сообщения: 7423
Зарегистрирован: 21 июл 2015, 08:08
Репутация: 591
Откуда: [email protected]
Контактная информация:

Щит на 3 фазы. Проверьте, пожалуйста, схему.

Сообщение elalex » 07 апр 2018, 11:06

.
Последний раз редактировалось elalex 07 апр 2018, 13:44, всего редактировалось 1 раз.
Одиночный свободный электрик
Опыт ремонтов квартир 20лет
Высшее электрическое образование
Бывший инженер-электрик
Пенсионер
64 года
Пишу для владельцев частного жилья
Запасной E–mail для россиян: [email protected]
Аватара пользователя
кви-45
Сообщения: 714
Зарегистрирован: 25 окт 2015, 20:31
Репутация: 254
Контактная информация:

Щит на 3 фазы. Проверьте, пожалуйста, схему.

Сообщение кви-45 » 07 апр 2018, 11:44

saigr, Классный набор фотографий и комментарий к ним, Elalex аж стал заикаться. Я бы еще добавил про неправильную фазировку подключения жил на автоматах, фаза А (желтая) должна подключаться на шинах или аппаратах слева, а красная справа.
За электробезопасность необходимо ПЛАТИТЬ,
за ее отсутствие РАСПЛАЧИВАТЬСЯ!
ПАВ
Сообщения: 7647
Зарегистрирован: 13 авг 2015, 19:54
Репутация: 923
Откуда: Одесса
Контактная информация:

Щит на 3 фазы. Проверьте, пожалуйста, схему.

Сообщение ПАВ » 07 апр 2018, 11:55

В итоге чайник, бойлер и котел буде охлаждать, а не греть? :biggrin:
В жизни все не так, как на самом деле...
Аватара пользователя
saigr
Сообщения: 43
Зарегистрирован: 06 апр 2018, 09:48
Репутация: 2
Откуда: Владивосток
Контактная информация:

Щит на 3 фазы. Проверьте, пожалуйста, схему.

Сообщение saigr » 07 апр 2018, 11:57

elalex, я не электрик )) именно поэтому пришел на этот форум.
И я не боюсь спрашивать то, чего не знаю. Ведь лучше прослыть ламером, чем всезнайкой, который спалил дом :blush:
Не буду зарекаться, что сделаю образцово-показательный щит + монтаж проводки, но постараюсь сделать несколько фото и выложу их в эту тему, после сдачи объекта.
Аватара пользователя
saigr
Сообщения: 43
Зарегистрирован: 06 апр 2018, 09:48
Репутация: 2
Откуда: Владивосток
Контактная информация:

Щит на 3 фазы. Проверьте, пожалуйста, схему.

Сообщение saigr » 07 апр 2018, 12:02

кви-45 писал(а):Источник цитаты Я бы еще добавил про неправильную фазировку подключения жил на автоматах

Цветовая маркировка, скорее всего, сделана исходя из личных пристрастий "электрика"...
ПАВ
Сообщения: 7647
Зарегистрирован: 13 авг 2015, 19:54
Репутация: 923
Откуда: Одесса
Контактная информация:

Щит на 3 фазы. Проверьте, пожалуйста, схему.

Сообщение ПАВ » 07 апр 2018, 12:16

Да не переживайте вы так, как бы вы не сделали, как не нарисовали, все рано будет неправильно- все вокруг- ненормальные негодяи, кроме одного, но он противник всяких норм и правил, кроме своих и их реализовать нереально. Или слишком дорого- наем на работу таких спецов дороже балла в Ницце.
Вы еще про УЗИП не слышали...
В жизни все не так, как на самом деле...
Аватара пользователя
кви-45
Сообщения: 714
Зарегистрирован: 25 окт 2015, 20:31
Репутация: 254
Контактная информация:

Щит на 3 фазы. Проверьте, пожалуйста, схему.

Сообщение кви-45 » 07 апр 2018, 12:27

saigr писал(а):Источник цитаты TOPMO3 писал(а):Источник цитаты
Просто на свою шину или подключен к "нулю"?
Отдельная шина.


Тормоз прав, этот серьезный вопрос нельзя оставлять без внимания. То есть у вас проложена в дом четырех проводка - три фазы и N и отдельно сделан заземлитель пока никуда не подключенный. Вам сейчас надо выбирать систему заземления, по которой вы будете запитаны, а это или TN-C-S или ТТ. Если элекроснабжение общей питающей линии к вашему дому хорошее, то надо делать TN-C-S, если нет то систему ТТ
За электробезопасность необходимо ПЛАТИТЬ,
за ее отсутствие РАСПЛАЧИВАТЬСЯ!
Аватара пользователя
saigr
Сообщения: 43
Зарегистрирован: 06 апр 2018, 09:48
Репутация: 2
Откуда: Владивосток
Контактная информация:

Щит на 3 фазы. Проверьте, пожалуйста, схему.

Сообщение saigr » 07 апр 2018, 12:38

ПАВ, если делать, то делать хорошо. А хорошо - это когда по правилам.
Просто регулярно сталкиваюсь с не профессионализмом во всех областях строительства :mad:
P.S. У меня были, некоторые сомнения, по своей схеме, поэтому пришел к вам, на форум, за советом.
Считаю, что лучше 5 раз перепроверить и посоветоваться с грамотными людьми, чем лепить все на обум и 10 раз переделывать.


  • Реклама

Вернуться в «Проектирование внутреннего электроснабжения»

Кто сейчас на конференции

Сейчас этот форум просматривают: нет зарегистрированных пользователей и 9 гостей