МБВ писал(а):Источник цитаты Оставьте 6в питание или под замену стартер, генератор, реле, лампы и остальное, кроме проводов. Как тракторист Вам говорю.
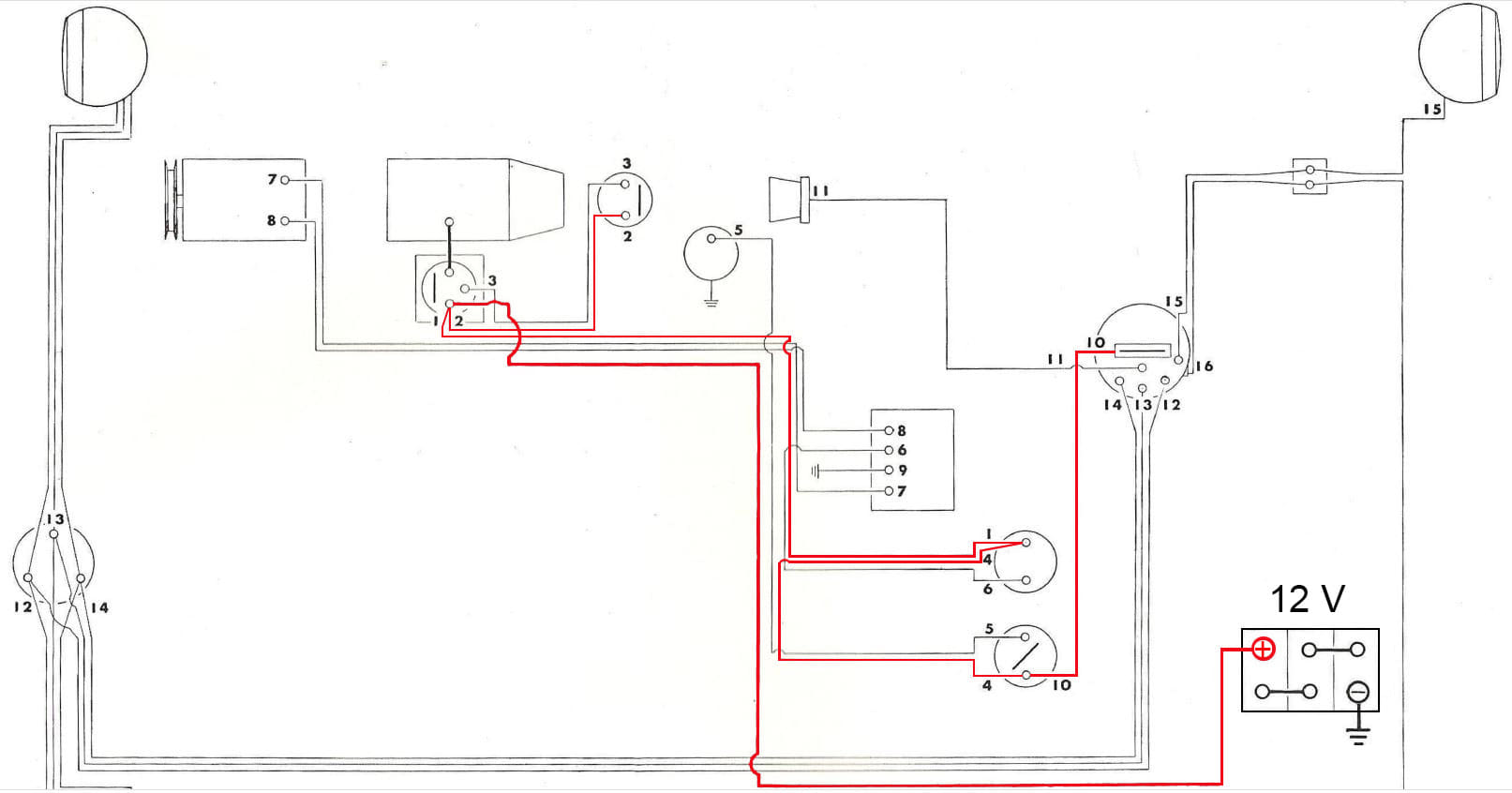
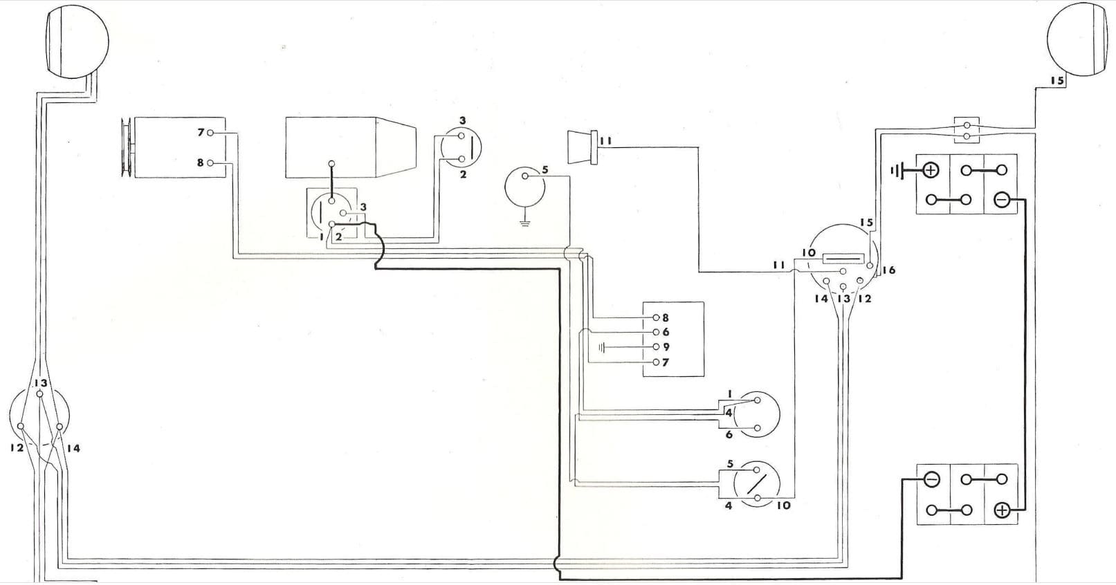
Сэр, Вас маленько запутали с этими фото ... толстый провод, который мы видим, идет не от АКБ, а от пускового реле, т.е. подает "плюс" апосля пятачка, на обмотку стартера.ПАВ писал(а):Источник цитаты Вот тот толстый(на рисунке) провод от АКБ к контактору и от него к стартеру и есть силовые- ток там приличный, много больше остальных. Соответственно, и все клеммы есть силовые. Смотрите на их диаметр. И тут совершенно непонятно применение после контактора такого тщедушного зеленого.

Вы правильно думаете!Duval писал(а):Источник цитаты ...И вот, какой вопрос возникает : нужно ли мне провести провод от аккумулятора на эту силовую клемму?
Я думал, что провод "+" из аккумулятора должен быть подключён к этому реле. Может, это неправильно?
Не обращайте внимания на "минус" в старой схеме ... теперь у Вас схема с "минусом" на корпусе и "плюсом" на проводах.Duval писал(а):Источник цитатыА-а, я понял! Вы говорите про толстый чёрный на схеме. Так он получается со знаком "минус" по этой схеме. Вот, это меня и смущает.
Скорее всего закорочена кнопка (по схеме).Duval писал(а):Источник цитаты... Удивляет один факт. Я сначала подключаю кабель плюс, и как только подключаю кабель минус, тут же сам по себе запускается стартёр.
О какой, латунной кнопке, Вы пишите? Предположу, что эту кнопку, прежние эксплуататоры, установили сами.Значит, чтобы завёлся двигатель, надо сначала нажать толстую латунную кнопку, и поставить рычаг переключения скоростей на "Старт".
После этого можно подключать кабель минус и как только заведётся, тут же снять этот кабель, иначе стартёр будет выть и крутиться.
Вот, я такого никогда не видел.
Что это такое?
Всё верно, это тоже реле.Duval писал(а):Источник цитаты ... Я говорю о такой чёрной коробочке, которая за щитком спрятана. Я её называю реле.
Я из неё никакие провода не вынимал, только её саму снял для покраски, а потом обратно прикрутил.
Показываю фотку.
А может, эта коробочка давно накрылась? Её работоспособность можно проверить?
Рычаг декомпрессора, работает штатно (как положено) ... Вы просто не вникли в его устройство и его предназначение ... потом я поподробнее расскажу всё ... пока просто запомните ...Duval писал(а):С декомпрессией пока запутка. Тот парень всё время переключал этот рычаг, у меня даже на видео это записано. А теперь трактор заводится только в том случае, если рычаг повернуть вправо.
Вернуться в «Вопросы от "чайника"»
Сейчас этот форум просматривают: нет зарегистрированных пользователей и 14 гостей