elalex писал(а):Источник цитаты Вы вообще кто? Какое у Вас образование, должность, опыт работы?
Начну с того, что не собирался с Вами вообще спорить. Наоборот, мне нравится то, что Вы пишете, кроме одного, что TN это - смерть,
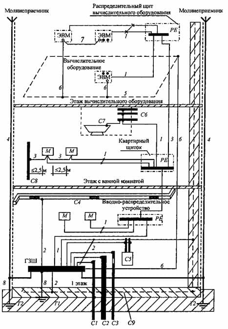
а ТТ - панацея от всех бед. Во всем остальном я с вами вполне согласен. Я хотел сказать Вам, только то, что и TN и ТТ в неправильном исполнении действительно могут привести к смертельному исходу, и они же, при правильном исполнении, вполне надежно защищают. И не важно где, в частном доме или на громадном производстве. В частном доме тоже можно осуществить TN, правда это бывает затратнее и сложнее, но можно!
Теперь немного о себе, раз вам это так интересно. Я электромонтер. Свой первый детекторный приемник я собрал примерно в 68 году прошлого века. Правила электробезопасности первый раз сдавал в 73. Образование высшее. Ремонтирую всевозможные станки, компрессора, грузо-подьемные механизмы и так далее, проверяю и налаживаю защиту на высоковольтных подстанциях, ищу пробои в кабелях, произвожу замеры изоляции, петли фаза-ноль и так далее, могу перебрать компьютер, ремонтировал тиристорные привода, обслуживаю инверторы, ну и так далее. Долго перечислять, да и как-то глупо при этом себя чувствуешь. Должности тоже разные были. Надеюсь, я удовлетворил Ваше любопытство.
С уважением, Саша.