Нужно ли опломбировать шину N и РЕ?

Схемы подключения однофазных и трехфазных счетчиков, их проверка, правила установки, показания, тарифы и т.п.
Аватара пользователя
mastervictor
Сообщения: 4494
Зарегистрирован: 23 июл 2015, 08:50
Репутация: 508
Откуда: Краснодар(почти)
Контактная информация:

Нужно ли опломбировать шину N и РЕ?

Сообщение mastervictor » 14 фев 2017, 15:14

chebunka писал(а):Источник цитаты Без проектов, без актов, без одно линейной схемы сотрудник рэса принял мой щу.

СО вся эта шняга не нужна!
А если есть жалоба,ДОЛЖЕН быть официальный ответ!
Нет ничего невозможного,необходимо две вещи,время и деньги!(Я :hi: )
Я отношусь к людям так,как они относятся ко мне!(Я :hi: )
Реклама
Аватара пользователя
chebunka
Сообщения: 47
Зарегистрирован: 10 фев 2017, 15:36
Репутация: 0
Контактная информация:

Нужно ли опломбировать шину N и РЕ?

Сообщение chebunka » 14 фев 2017, 15:34

mastervictor писал(а):Источник цитаты
chebunka писал(а):Источник цитаты Без проектов, без актов, без одно линейной схемы сотрудник рэса принял мой щу.

СО вся эта шняга не нужна!
А если есть жалоба,ДОЛЖЕН быть официальный ответ!

Что значит не нужна. Они их требуют. Тот кто не в теме платят прикормленным проектировщикам. Ответ будет. Главное что без этих бумаг у меня осмотрели щу.
Аватара пользователя
mastervictor
Сообщения: 4494
Зарегистрирован: 23 июл 2015, 08:50
Репутация: 508
Откуда: Краснодар(почти)
Контактная информация:

Нужно ли опломбировать шину N и РЕ?

Сообщение mastervictor » 14 фев 2017, 16:07

chebunka писал(а):Источник цитаты Что значит не нужна.

То и значит!
chebunka писал(а):Источник цитаты Ответ будет.

ЖдемС!!!
Нет ничего невозможного,необходимо две вещи,время и деньги!(Я :hi: )
Я отношусь к людям так,как они относятся ко мне!(Я :hi: )
Аватара пользователя
Константин
Сообщения: 3464
Зарегистрирован: 16 сен 2015, 10:19
Репутация: 851
Откуда: Новосибирская область
Контактная информация:

Нужно ли опломбировать шину N и РЕ?

Сообщение Константин » 14 фев 2017, 17:07

TOPMO3 писал(а):Источник цитаты Вы похоже просто забыли, изначально заданный вопрос ... ответ на который в ТУ, никогда не освещается ... по причине того, что это входит в обязательные знания специалиста монтажника, но не самостоятельного умельца.

Я прекрасно помню вопрос изначальный. Зачем пломбировать шину. А вот ТУ понадобились при выяснении иных обстоятельств.
TOPMO3 писал(а):Источник цитаты з.ы. Кстати в выложенном Вами ТУ (втором) опять присутствует граница балансовая - признак того, что или СО там предоставляет кабель (от опоры до щитка) или не грамотность составителей.

Эти "хотелки" каждые сети регионов пишет свои. Там нет такого безграмотность,там есть просто хочу. И иногда выше стоящие начальство просто кладет на все..
chebunka писал(а):Источник цитаты я так и написал. весь щу по балансовой будет мое. а вот ваше ту с грубейшими нарушениями законадетельства.
вот посмотрите какие иски отправляются в уфас, посли них сетевая забывает про требования свои

Чем дело это все кончалось? Написать одно, а был ли толк?
Знаете у наших местных сетей. Скажем так Главное руководство имеет собственный бизнес. И принудительно заставляет брать у них то или иное оборудование не зависимо от того хочет ли абонент его покупать и кладет на то, что в тех же ТУ не указано то оборудование к которому они принуждают человека. Писали не одну телегу на этих Гондон*в не одну телегу по всем инстанциям. А они как продолжали занимать свои посты и также "добровольно принудительно" заставлять делать абонентов то, что они скажут так и продолжают.
Аватара пользователя
chebunka
Сообщения: 47
Зарегистрирован: 10 фев 2017, 15:36
Репутация: 0
Контактная информация:

Нужно ли опломбировать шину N и РЕ?

Сообщение chebunka » 14 фев 2017, 21:14

Константин писал(а):Источник цитаты
TOPMO3 писал(а):

форум какой то не удобный. мне кажется его сложно читать. в том плане что я уже несколько раз писал, что сотрудник рэс принял мой щу вчера.
про балансовые границы я ответил законом. разобрались.
про ограничитель мощности судебным решением. их, кстати, десятки, не говоря уже про то что в интернет не попало. тоже разобрались.
а вот то что пен необходимость разделять на границе балансовой и эксплуатационной мощности не выяснили )
Аватара пользователя
Константин
Сообщения: 3464
Зарегистрирован: 16 сен 2015, 10:19
Репутация: 851
Откуда: Новосибирская область
Контактная информация:

Нужно ли опломбировать шину N и РЕ?

Сообщение Константин » 14 фев 2017, 22:24

chebunka писал(а):Источник цитаты а вот то что пен необходимость разделять на границе балансовой и эксплуатационной мощности не выяснили )

Вы сами то определились какую систему заземления будите эксплуатировать? Может делить и не надо если выберите ТТ.
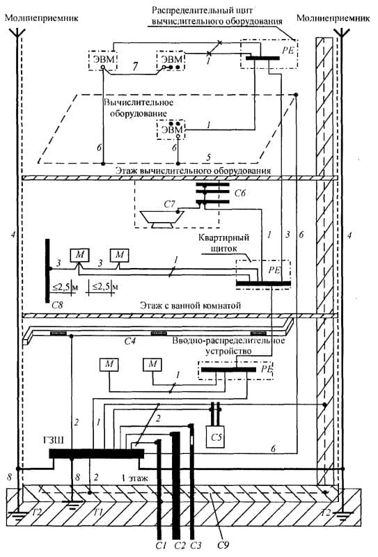
Для TN-C-S:
ПУЭ.jpg
Аватара пользователя
elalex
Сообщения: 7423
Зарегистрирован: 21 июл 2015, 08:08
Репутация: 591
Откуда: [email protected]
Контактная информация:

Нужно ли опломбировать шину N и РЕ?

Сообщение elalex » 15 фев 2017, 02:35

chebunka, кто не выяснил, где разделять РЕN, а кто и выяснил, что его не стоит иметь вообще.
Боритесь с ветряными мельницами и дальше.
Одиночный свободный электрик
Опыт ремонтов квартир 20лет
Высшее электрическое образование
Бывший инженер-электрик
Пенсионер
64 года
Пишу для владельцев частного жилья
Запасной E–mail для россиян: [email protected]
Аватара пользователя
chebunka
Сообщения: 47
Зарегистрирован: 10 фев 2017, 15:36
Репутация: 0
Контактная информация:

Нужно ли опломбировать шину N и РЕ?

Сообщение chebunka » 15 фев 2017, 11:02

Константин писал(а):Источник цитаты
chebunka писал(а):Источник цитаты а вот то что пен необходимость разделять на границе балансовой и эксплуатационной мощности не выяснили )

Вы сами то определились какую систему заземления будите эксплуатировать? Может делить и не надо если выберите ТТ.
Для TN-C-S:
ПУЭ.jpg

с тлф плохо видно схему.
раз снип требует tn с s, значит будет tn с s.
ВЛ 0,4 сип, дальше к дому по моей земле броня на глубине 0,7. препятствия по эксплуатации и безопасности не вижу. поправьте, если что.
Аватара пользователя
chebunka
Сообщения: 47
Зарегистрирован: 10 фев 2017, 15:36
Репутация: 0
Контактная информация:

Нужно ли опломбировать шину N и РЕ?

Сообщение chebunka » 15 фев 2017, 11:04

elalex писал(а):Источник цитаты chebunka, кто не выяснил, где разделять РЕN, а кто и выяснил, что его не стоит иметь вообще.

на керосинке питаться?
Аватара пользователя
Константин
Сообщения: 3464
Зарегистрирован: 16 сен 2015, 10:19
Репутация: 851
Откуда: Новосибирская область
Контактная информация:

Нужно ли опломбировать шину N и РЕ?

Сообщение Константин » 15 фев 2017, 13:17

elalex писал(а):Источник цитаты chebunka, кто не выяснил, где разделять РЕN, а кто и выяснил, что его не стоит иметь вообще.
Боритесь с ветряными мельницами и дальше.

Предлогаю такие варианты. Так как сейчас усугубо заставляют выносить приборы учета к границам балансового разграничения. Пусть для ВПУ монтируют tn-c-s. Две шинки поставить по 50 руб и повторно заземлить не разорит ни кого. А у своего дома уже непосредственно в РЩ делать ТТ.
Аватара пользователя
TOPMO3
Сообщения: 4181
Зарегистрирован: 29 фев 2016, 10:37
Репутация: 626
Откуда: Ижевск
Контактная информация:

Нужно ли опломбировать шину N и РЕ?

Сообщение TOPMO3 » 15 фев 2017, 16:10

chebunka писал(а):Источник цитатыпро ограничитель мощности судебным решением.
Упертым тока через суд и доходит ... Вам я объяснял, что вместо прибора - ограничителя мощности ... сетевые организации принимают простой автомат.
Поэтому во всех ТУ (у всех) и пишут ограничитель мощности - подразумевая вводной автомат.
От такого как Вы, Санчо Панса сбежал бы. :biggrin:
Смеюсь последний ... тормоз однако!
Аватара пользователя
elalex
Сообщения: 7423
Зарегистрирован: 21 июл 2015, 08:08
Репутация: 591
Откуда: [email protected]
Контактная информация:

Нужно ли опломбировать шину N и РЕ?

Сообщение elalex » 15 фев 2017, 17:13

chebunka:
1.Почитайте мои темы про TN-C-S и TT.
2.Думаете, без РЕN нет жизни на Земле? Вроде ж ПУЭ для Вас не указ?
Одиночный свободный электрик
Опыт ремонтов квартир 20лет
Высшее электрическое образование
Бывший инженер-электрик
Пенсионер
64 года
Пишу для владельцев частного жилья
Запасной E–mail для россиян: [email protected]


  • Реклама

Вернуться в «Учет электроэнергии»

Кто сейчас на конференции

Сейчас этот форум просматривают: нет зарегистрированных пользователей и 7 гостей