Подключение переключателя фаз

Выбор и схемы подключения контакторов, пускателей, реле, различных датчиков, кнопок управления, переключателей и т.п.
Аватара пользователя
tolik
Сообщения: 74
Зарегистрирован: 13 окт 2017, 16:35
Репутация: 3
Контактная информация:

Подключение переключателя фаз

Сообщение tolik » 16 окт 2017, 18:00

Здравствуйте, обращаюсь к тем , кто имеет опыт эксплуатации автом-го переключателя фаз PF441 По теории вроде понятно , но смущает указание инструкции , что необходимо знать фазы с самыми стабильными и самыми худшими параметрами, чтобы подключить их на соответствующие клеммы переключателя (раздел инструкции – МОНТАЖ)
Поэтому хочу спросить насколько критично не соблюдения этого условия. Наш ответственный за электрохозяйство СНТ сказал , что стабильно гарантированной фазы с хорошими параметрами в нашей эл.сети длиной 1,5 км нет, типа они все гуляют в зависимости от времени и нагрузок. Вот хотел узнать , при не соблюдении этого условия реально использовать переключатель фаз PF-441
Второй вопрос.
Подключать PF-441 хочу через контактор, но с учетом того , что перепады напряжения (а это в худшем случае 170-190В) бывает происходит с большой частотой, то и пускатель будет переключаться с такой же частотой. Не приведет ли это к выходу из строя пускателя и PF - 441
Ну и вообще, какие есть моменты, на которые необходимо обращать внимание при монтаже и эксплуатации этого переключателя.
Реклама
ПАВ
Сообщения: 7647
Зарегистрирован: 13 авг 2015, 19:54
Репутация: 923
Откуда: Одесса
Контактная информация:

Подключение переключателя фаз

Сообщение ПАВ » 16 окт 2017, 18:24

Вам стабилизатор нормальный, а не переключатель нужен- толку от передергиваний из плохого на временно не очень плохое? Хотя, при такой длине линии, выбрать сложно. Характер изменения напряжения медленный-быстрый, нагрузка какая по типу и мощности?
В жизни все не так, как на самом деле...
Аватара пользователя
elalex
Сообщения: 7423
Зарегистрирован: 21 июл 2015, 08:08
Репутация: 591
Откуда: [email protected]
Контактная информация:

Подключение переключателя фаз

Сообщение elalex » 16 окт 2017, 19:30

tolik, что такое СНТ?
Одиночный свободный электрик
Опыт ремонтов квартир 20лет
Высшее электрическое образование
Бывший инженер-электрик
Пенсионер
64 года
Пишу для владельцев частного жилья
Запасной E–mail для россиян: [email protected]
ПАВ
Сообщения: 7647
Зарегистрирован: 13 авг 2015, 19:54
Репутация: 923
Откуда: Одесса
Контактная информация:

Подключение переключателя фаз

Сообщение ПАВ » 16 окт 2017, 19:43

Вам это не понять, хоть и много про него здесь писалось, ваша любимая Вики выдает: ... СНТ — садовое некоммерческое товарищество...(с) Название на поведение электросети никак не влияет.
В жизни все не так, как на самом деле...
Аватара пользователя
Леопольд
Сообщения: 2199
Зарегистрирован: 05 янв 2016, 14:35
Репутация: 74
Контактная информация:

Подключение переключателя фаз

Сообщение Леопольд » 16 окт 2017, 21:34

Ещё как влияет! У нас, как выяснилось, почти все Снт сидело на одной фазе...х
(Сборище неадекватных тихушников (с)).
Кандидат в младшие помощники начинающего ученика электрика
Аватара пользователя
elalex
Сообщения: 7423
Зарегистрирован: 21 июл 2015, 08:08
Репутация: 591
Откуда: [email protected]
Контактная информация:

Подключение переключателя фаз

Сообщение elalex » 16 окт 2017, 22:54

Членам этого товарищества запрещается продавать свою продукцию и сдавать в аренду свою дачу? За этим следят? На каждого садовода по следопыту?
Одиночный свободный электрик
Опыт ремонтов квартир 20лет
Высшее электрическое образование
Бывший инженер-электрик
Пенсионер
64 года
Пишу для владельцев частного жилья
Запасной E–mail для россиян: [email protected]
Аватара пользователя
elalex
Сообщения: 7423
Зарегистрирован: 21 июл 2015, 08:08
Репутация: 591
Откуда: [email protected]
Контактная информация:

Подключение переключателя фаз

Сообщение elalex » 16 окт 2017, 23:04

tolik:
1.Расскажите про свою дачу - что за техусловия, какое электрооборудование стоит?
2.Переключатель фаз - несерьезный аппарат стабилизации напряжения. Есть другие методы. Чтобы определиться с методом - нужны данные Вашей сети и дачи.
3.Нужна статистика напряжений по часам дня, дням недели и временам года. Чем полнее, тем лучше.
Для начала купить три цифровых реле напряжения с дисплеем, с записью событий, поставить их в каждую фазу и записывать показания.
Одиночный свободный электрик
Опыт ремонтов квартир 20лет
Высшее электрическое образование
Бывший инженер-электрик
Пенсионер
64 года
Пишу для владельцев частного жилья
Запасной E–mail для россиян: [email protected]
Аватара пользователя
tolik
Сообщения: 74
Зарегистрирован: 13 окт 2017, 16:35
Репутация: 3
Контактная информация:

Подключение переключателя фаз

Сообщение tolik » 17 окт 2017, 09:22

Спасибо за ответы.
Нагрузка у меня бытовая три электронагревателя – по2кВт, эл. чайник, водонагреватель, эл. плитка, СВЧ, холодильник, ТV, освещение – где-то на кВт 15. Характер изменения напряжения бывает очень частый(через 1-2 минут), как правило вечером.
Максимум нагрузки в наиболее загруженный период, при помощи организационных мер, держу в пределах 8кВт , если превышу выбивает вводный автомат на 40А Питающая линия выполнена в земле кабелем АВВГ 4х95 с системой заземления TN-C. У меня на участке сделан перевод на однофазную систему TN–C-S.
Переключатель фаз мне достался на халяву, поэтому хочу рассмотреть прежде всего вариант с его использованием, ну а если от этого переключателя толка будет мало , то надо рассматривать вариант с СН
Аватара пользователя
elalex
Сообщения: 7423
Зарегистрирован: 21 июл 2015, 08:08
Репутация: 591
Откуда: [email protected]
Контактная информация:

Подключение переключателя фаз

Сообщение elalex » 17 окт 2017, 11:47

1.Серьезная у Вас дача - не всякий дом имеет ввод 95кв. Все равно, для перестраховки и правильного понимания ситуации -
придется сделать измерение входящей линии и расчет тока КЗ по методу вольтметра и чайника.
2.Система заземления определяется потребителем, а не входящей линией.
3.Сильно рекомендую переделать TN-C-S на ТТ, на форуме в моих темах разжевано.
4.Пора рисовать 1-линейную схему питания дачи, с защитными характеристиками автоматов.
5.Раз у вас такая мощная линия питания, есть шанс получить пользу от переключателя.
6. Ставьте реле напряжения, скажем, Volter VC-01, и снимайте статистику напряжений, без нее выводы делать рано.
Последний раз редактировалось elalex 18 окт 2017, 13:38, всего редактировалось 1 раз.
Одиночный свободный электрик
Опыт ремонтов квартир 20лет
Высшее электрическое образование
Бывший инженер-электрик
Пенсионер
64 года
Пишу для владельцев частного жилья
Запасной E–mail для россиян: [email protected]
Аватара пользователя
tolik
Сообщения: 74
Зарегистрирован: 13 окт 2017, 16:35
Репутация: 3
Контактная информация:

Подключение переключателя фаз

Сообщение tolik » 17 окт 2017, 15:33

elalex » Сегодня, 11:47
1. Под питающей линией я имел ввиду сеть эл. снабжения всего СНТ. От этой линии питается ВРУ , где происходит разделение PEN проводника и от этого ВРУ по распределительным сетям подается питание на групповой щиток дома, на боксики в кухне и сарае, где по групповым сетям распределяется по потребителям.
2. вот я и определил.
3. Elalex , без обид, я уже определился со схемой заземления , ТТ не моя схема и менять свои убеждения не буду.
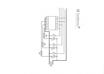
4. С линейной схемой еще рано разбираться надо разобраться с схемой подключения PF-441 через контактор
171017122806_0001.jpg
, Я так понимаю, что там надо ставить три однофазных пускателя?
5 -
6. А токовыми клещами тоже удобно , повесил на провод и смотри. Я проводил замеры , у меня все нормально если U = 195-210B?
Аватара пользователя
mastervictor
Сообщения: 4494
Зарегистрирован: 23 июл 2015, 08:50
Репутация: 508
Откуда: Краснодар(почти)
Контактная информация:

Подключение переключателя фаз

Сообщение mastervictor » 25 окт 2017, 15:55

tolik, стабилизатор тебе нужен!
Нет ничего невозможного,необходимо две вещи,время и деньги!(Я :hi: )
Я отношусь к людям так,как они относятся ко мне!(Я :hi: )
Аватара пользователя
tolik
Сообщения: 74
Зарегистрирован: 13 окт 2017, 16:35
Репутация: 3
Контактная информация:

Подключение переключателя фаз

Сообщение tolik » 26 дек 2017, 16:28

Решил в этой теме рассмотреть вопрос по выбору прибора защиты электрооборудования от перепадов напряжения. Мне предложили на выбор два прибора автоматики УЗМ-51М или ASP-1RV. Я разобрался с схемой включения все вроде понятно , опробовал в работе, но должен выбрать один, поэтому нужен практический совет от специалиста, который имеет опыт технического обслуживания этих приборов. Интересует технические преимущества , надежность.
Аватара пользователя
elalex
Сообщения: 7423
Зарегистрирован: 21 июл 2015, 08:08
Репутация: 591
Откуда: [email protected]
Контактная информация:

Подключение переключателя фаз

Сообщение elalex » 26 дек 2017, 17:34

1.Можете рассказать, чем TN-C-S лучше ТТ? Или это слепая религиозная вера, не требующая размышлений и доказательств?
2.Цифровой аппарат всегда лучше аналогового.
3.Внешний контактор может быть полезен при частых переключениях.
4.В ASP нет защиты от внутреннего КЗ, и нужно ставить внешний автомат.
5.Нужно не только реле напряжения, но и его байпас на случай поломки, на время ремонта или замены.
6.Опыт технического обслуживания реле имеют сервисные центры.
Одиночный свободный электрик
Опыт ремонтов квартир 20лет
Высшее электрическое образование
Бывший инженер-электрик
Пенсионер
64 года
Пишу для владельцев частного жилья
Запасной E–mail для россиян: [email protected]
Аватара пользователя
кви-45
Сообщения: 714
Зарегистрирован: 25 окт 2015, 20:31
Репутация: 254
Контактная информация:

Подключение переключателя фаз

Сообщение кви-45 » 26 дек 2017, 19:11

elalex писал(а):Источник цитаты
Можете рассказать, чем TN-C-S лучше ТТ? Или это слепая религиозная вера, не требующая размышлений и доказательств?


Не знаю , что tolik ответит предлагаю вам вот такой расклад.
1.В системе ТТ основная защита обеспечивается автоматческим отключением при возникновении тока утечки и срабатывании УЗО
2.В системе ТN-C основная защита обеспечивается автоматическим отключением при возникновении тока КЗ, срабатывает АВ
3.1.В системе ТN-S и TN-C-S защита обеспечивается автоматическим отключением как и при возникновении тока утечки так и при КЗ и плюс к этому в этих системах снижается напряжение прикосновения, что тоже очень важно.
За электробезопасность необходимо ПЛАТИТЬ,
за ее отсутствие РАСПЛАЧИВАТЬСЯ!
Аватара пользователя
elalex
Сообщения: 7423
Зарегистрирован: 21 июл 2015, 08:08
Репутация: 591
Откуда: [email protected]
Контактная информация:

Подключение переключателя фаз

Сообщение elalex » 27 дек 2017, 03:54

Не нужно мне рассказывать, как работают TN и ТТ. Расскажите, чем ТN лучше ТТ. Скажем, про величину и длительность напряжения прикосновения. Особенно, если на вводе до автомата заземлена фаза вместо ноля.
Прикоснетесь к такому РЕ? tupos побоялся.
Одиночный свободный электрик
Опыт ремонтов квартир 20лет
Высшее электрическое образование
Бывший инженер-электрик
Пенсионер
64 года
Пишу для владельцев частного жилья
Запасной E–mail для россиян: [email protected]
Аватара пользователя
tolik
Сообщения: 74
Зарегистрирован: 13 окт 2017, 16:35
Репутация: 3
Контактная информация:

Подключение переключателя фаз

Сообщение tolik » 27 дек 2017, 11:18

elalex писал(а):Источник цитаты
Расскажите, чем ТN лучше ТТ.


кви-45 уже написал в сообщение, там все понятно, сопли размазывать не буду.

Скажем, про величину и длительность напряжения прикосновения.

А Вы знаете, что такое напряжение прикосновения?
Последний раз редактировалось tolik 27 дек 2017, 14:02, всего редактировалось 1 раз.
Аватара пользователя
Леопольд
Сообщения: 2199
Зарегистрирован: 05 янв 2016, 14:35
Репутация: 74
Контактная информация:

Подключение переключателя фаз

Сообщение Леопольд » 27 дек 2017, 11:32

tolik писал(а):Источник цитаты что такое напряжение прикосновения?

Елалекс точно знает. А вот я не очень - если можно поподробней объясните, пжлст!
Кандидат в младшие помощники начинающего ученика электрика
Аватара пользователя
elalex
Сообщения: 7423
Зарегистрирован: 21 июл 2015, 08:08
Репутация: 591
Откуда: [email protected]
Контактная информация:

Подключение переключателя фаз

Сообщение elalex » 27 дек 2017, 11:37

1.Не вижу Вашего сообщения про преимущество ТN, с кви-45 спорить не буду.
2.Думаете, знаете правила лучше меня? ПУЭ 1.7.24 знаю.
Думаю, нормирование напряжения прикосновения - идиотизм ПУЭ.
Одиночный свободный электрик
Опыт ремонтов квартир 20лет
Высшее электрическое образование
Бывший инженер-электрик
Пенсионер
64 года
Пишу для владельцев частного жилья
Запасной E–mail для россиян: [email protected]
Аватара пользователя
tolik
Сообщения: 74
Зарегистрирован: 13 окт 2017, 16:35
Репутация: 3
Контактная информация:

Подключение переключателя фаз

Сообщение tolik » 27 дек 2017, 14:23

Леопольд писал(а):Источник цитаты

Елалекс точно знает. А вот я не очень - если можно поподробней объясните, пжлст!


Давайте подождем , я хотел бы узнать как он это понимает, а то он любит задавать вопросы.


elalex писал(а):Источник цитаты
1.Не вижу Вашего сообщения про преимущество ТN, с кви-45 спорить не буду.


Извините, внес изменения в свое сообщение" tolik » Сегодня, 11:18" См. сообщение. Там я с кви-45 согласился.
Аватара пользователя
tolik
Сообщения: 74
Зарегистрирован: 13 окт 2017, 16:35
Репутация: 3
Контактная информация:

Подключение переключателя фаз

Сообщение tolik » 28 дек 2017, 10:41

Ответ кви-45 » elalex от 26 дек 2017, 19:11 увел мою тему в сторону, тема по напряжению прикосновения конечно очень интересная и нужная , но я хочу вернуться к рассмотрению своей.

" tolik » 26 дек 2017, 16:28
Решил в этой теме рассмотреть вопрос по выбору прибора защиты электрооборудования от перепадов напряжения. Мне предложили на выбор два прибора автоматики УЗМ-51М или ASP-1RV. Я разобрался с схемой включения все вроде понятно , опробовал в работе, но должен выбрать один, поэтому нужен практический совет от специалиста, который имеет опыт технического обслуживания этих приборов. Интересует технические преимущества , надежность.
Пожалуйста, если есть у кого-нибудь свои соображения, сообщите.


  • Реклама

Вернуться в «Контакторы, пускатели, реле, датчики, кнопки и т.п.»

Кто сейчас на конференции

Сейчас этот форум просматривают: нет зарегистрированных пользователей и 8 гостей