Нормативные документы по квартирной электропроводке

Проектирование внутреннего электроснабжения квартир, домов, коттеджей и т.п. Нормы, типовые проекты, расчеты, делимся своими проектами.
Foxman
Сообщения: 2
Зарегистрирован: 02 фев 2016, 12:09
Репутация: 0
Контактная информация:

Нормативные документы по квартирной электропроводке

Сообщение Foxman » 02 фев 2016, 12:12

Подскажите, в каких документах (гост, снип и т.д.) регулируются правила устройства внутриквартирной электросети ? У меня предстоит ремонт квартиры и хотелось бы с относительным знанием дела проверять работу электриков
Реклама
Аватара пользователя
Константин
Сообщения: 3464
Зарегистрирован: 16 сен 2015, 10:19
Репутация: 851
Откуда: Новосибирская область
Контактная информация:

Нормативные документы по квартирной электропроводке

Сообщение Константин » 02 фев 2016, 12:46

Foxman, Начните с ПУЭ, ПТЭЭП, СНиП 21-01-97
А дальше по нормативным ссылкам указанных в этих документах.
Аватара пользователя
Восток
Сообщения: 850
Зарегистрирован: 30 янв 2016, 18:07
Репутация: 429
Контактная информация:

Нормативные документы по квартирной электропроводке

Сообщение Восток » 02 фев 2016, 12:55

СП 31-110 -2003 ПРОЕКТИРОВАНИЕ И МОНТАЖ ЭЛЕКТРОУСТАНОВОК ЖИЛЫХ И ОБЩЕСТВЕННЫХ ЗДАНИЙ
14 Устройство внутренних электрических сетей

ПУЭ 7
Глава 7.1
Электропроводки и кабельные линии
Внутреннее электрооборудование
Аватара пользователя
Константин
Сообщения: 3464
Зарегистрирован: 16 сен 2015, 10:19
Репутация: 851
Откуда: Новосибирская область
Контактная информация:

Нормативные документы по квартирной электропроводке

Сообщение Константин » 02 фев 2016, 13:01

Восток писал(а):Источник цитаты ПУЭ 7
Глава 7.1

Этот документ обязан будет к полному применению, а не только отдельной главы. Так как делают ремонт значит будет монтаж системы электропитания считай с нуля. Начиная от ввода в квартиру кончая установкой вспомогательной электротехнической фурнитуры с розетками и выключателями.
Аватара пользователя
elalex
Сообщения: 7423
Зарегистрирован: 21 июл 2015, 08:08
Репутация: 591
Откуда: [email protected]
Контактная информация:

Нормативные документы по квартирной электропроводке

Сообщение elalex » 02 фев 2016, 13:39

Foxman писал(а):Источник цитаты проверять работу электриков

Знание правил - в общем дело полезное, но недостаточное. Некоторые пункты правил сомнительны, а некоторые - смертельно опасны. Главными должны быть не правила, а Ваш здравый смысл. Вы должны понимать, что, почему и как должно быть сделано. А по правилам или не по правилам - дело второе.
Стандартно люди рисуют планы своих квартир и предлагают свою схему питания. Старожилы форума предлагают свои изменения. Изменений очень много и от разных "дедов". Посетитель выбирает, кого стоит слушать, а кого нет. Деды тоже выбирают, стоит ли иметь дело с посетителем или нет. Посетитель задает много вопросов, деды по возможности отвечают. За месяц обсуждения посетителю все становится достаточно ясным.
Проблемы посетителей достаточно одинаковы, имеет смысл почитать похожие темы, они указаны внизу страницы. Вашу тему Администратор внесет в нужный раздел, почитайте темы этого раздела.
В разделе "Разное" "Отзывы и предложения по форуму" прочитайте мою тему "Альтернативные правила форума - пособие для новичков".
Одиночный свободный электрик
Опыт ремонтов квартир 20лет
Высшее электрическое образование
Бывший инженер-электрик
Пенсионер
64 года
Пишу для владельцев частного жилья
Запасной E–mail для россиян: [email protected]
Аватара пользователя
Mikhail
Сообщения: 60
Зарегистрирован: 24 июл 2015, 13:34
Репутация: 0
Контактная информация:

Нормативные документы по квартирной электропроводке

Сообщение Mikhail » 03 фев 2016, 20:40

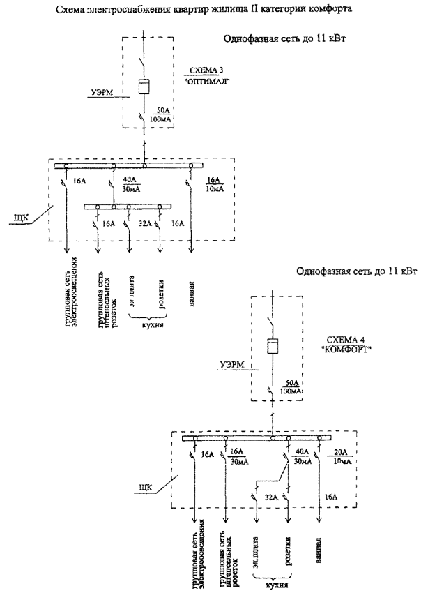
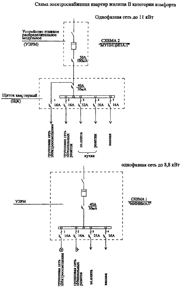
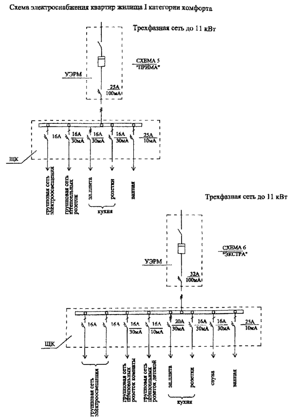
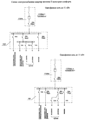
Наткнулся недавно на такие нормы, как Московские Гос. Нормы и Правила МГСН 3.01-01
И эти правила предлагают несколько типовых схем
Каждой даже придумали модное название
Думаю, многие на форуме не одобрят предложенные правилами варианты
Вложения
x059.gif
x061.gif
x057.gif
Аватара пользователя
Восток
Сообщения: 850
Зарегистрирован: 30 янв 2016, 18:07
Репутация: 429
Контактная информация:

Нормативные документы по квартирной электропроводке

Сообщение Восток » 03 фев 2016, 21:52

Mikhail писал(а):Источник цитаты Наткнулся недавно на такие нормы, как Московские Гос. Нормы и Правила МГСН 3.01-01


Долго же вы натыкались. Поди уж 15 лет как прошло.
Есть еще и
ГОСТ Р 51628-2000 Щитки распределительные для жилых зданий
ГОСТ Р 51732-2001 Устройства ВРП
СТБ ГОСТ Р 51778-2002 Щитки распределительные для производственных и общественных зданий
Аватара пользователя
Mikhail
Сообщения: 60
Зарегистрирован: 24 июл 2015, 13:34
Репутация: 0
Контактная информация:

Нормативные документы по квартирной электропроводке

Сообщение Mikhail » 04 фев 2016, 15:32

Москва - это вообще-то еще не вся Россия
Аватара пользователя
DimaPlus
Сообщения: 5
Зарегистрирован: 18 окт 2016, 08:33
Репутация: 0
Контактная информация:

Нормативные документы по квартирной электропроводке

Сообщение DimaPlus » 18 окт 2016, 08:57

А это уже реально полезная инфомация.
Аватара пользователя
elalex
Сообщения: 7423
Зарегистрирован: 21 июл 2015, 08:08
Репутация: 591
Откуда: [email protected]
Контактная информация:

Нормативные документы по квартирной электропроводке

Сообщение elalex » 18 окт 2016, 10:20

DimaPlus писал(а):Источник цитаты это уже реально полезная информация.

Для производителей щитков.
Одиночный свободный электрик
Опыт ремонтов квартир 20лет
Высшее электрическое образование
Бывший инженер-электрик
Пенсионер
64 года
Пишу для владельцев частного жилья
Запасной E–mail для россиян: [email protected]


  • Реклама

Вернуться в «Проектирование внутреннего электроснабжения»

Кто сейчас на конференции

Сейчас этот форум просматривают: нет зарегистрированных пользователей и 7 гостей