ФСК «Лидер» избавился от очередного социального обязательства.

NickMix
Сообщения: 462
Зарегистрирован: 27 мар 2017, 17:46
Дом: Сколковская, 3в (корп.8)

Re: ФСК «Лидер» избавился от очередного социального обязательства.

29 ноя 2017, 10:12

Кэп писал(а):Источник цитаты P.S. По выписке из ЕГРН земельный участок под будущую школу переведен в собственность Одинцовского муниципального района аж с 1 сентября этого года. Т.о., решение, по всей видимости было принято еще весной-летом. Так что новость в СМИ немного запоздала.


А можно выложить выписку из ЕГРН, так как на сайте застройщика, земля все еще его.
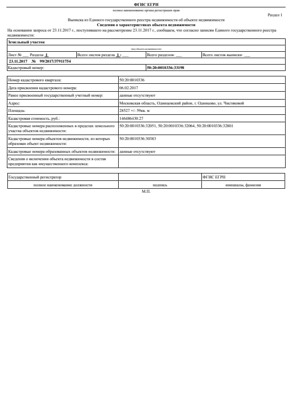
ЕГРН-33198.pdf
(180.04 КБ) 402 скачивания


а с сайта Росреестра:
ФСК «Лидер» избавился от очередного социального обязательства. - rosreestr-school.png
ФСК «Лидер» избавился от очередного социального обязательства. - rosreestr-school.png (42.63 КБ) 8843 просмотра


в них различные права собственности, но не понятно кто правообладатель по № 50:20:0010336:33198-50/020/2017-4 от 01.09.2017 (Собственность).



Hamster
Сообщения: 162
Зарегистрирован: 06 мар 2017, 19:33
Дом: Сколковская, 7а (корп.4)

Re: ФСК «Лидер» избавился от очередного социального обязательства.

29 ноя 2017, 13:07

NickMix писал(а):Источник цитаты

А можно выложить выписку из ЕГРН, так как на сайте застройщика, земля все еще его.
ЕГРН-33198.pdf

а с сайта Росреестра:
rosreestr-school.png

в них различные права собственности, но не понятно кто правообладатель по № 50:20:0010336:33198-50/020/2017-4 от 01.09.2017 (Собственность).


Вечером выложу

Реклама
Hamster
Сообщения: 162
Зарегистрирован: 06 мар 2017, 19:33
Дом: Сколковская, 7а (корп.4)

Re: ФСК «Лидер» избавился от очередного социального обязательства.

29 ноя 2017, 21:32

Свежая выписка из ЕГРН на земельный участок под школу. Получена через ФГИС ЕГРН.
Html выложить не получается, поэтому выкладываю zip-архив с html и в формате pdf (делал онлайн конвертером, получилось криво, но
для мобильных устройств на которых нечем открыть zip сойдет).

Собственник - Одинцовский муниципальный район с 01.09.2017.

Передача земельного участка под школу Одинцовскому району и выделение денег на строительство из бюджета на мой взгляд говорит об успешном завершении переговоров о муниципализации школы, о которых застройщик ранее писал в социальной сети ВКонтакте.
Вложения
Участок_школа.zip
(101.61 КБ) 433 скачивания
Участок_под_школу.pdf
(116.16 КБ) 440 скачиваний

NickMix
Сообщения: 462
Зарегистрирован: 27 мар 2017, 17:46
Дом: Сколковская, 3в (корп.8)

Re: ФСК «Лидер» избавился от очередного социального обязательства.

30 ноя 2017, 08:47

Hamster писал(а):Источник цитаты Передача земельного участка под школу Одинцовскому району и выделение денег на строительство из бюджета на мой взгляд говорит об успешном завершении переговоров о муниципализации школы, о которых застройщик ранее писал в социальной сети ВКонтакте.


нормальный .pdf

hakmor
Сообщения: 184
Зарегистрирован: 22 фев 2017, 12:52
Дом: Сколковская, 7а (корп.4)

Re: ФСК «Лидер» избавился от очередного социального обязательства.

30 ноя 2017, 09:02

NickMix писал(а):Источник цитаты
Hamster писал(а):Источник цитаты Передача земельного участка под школу Одинцовскому району и выделение денег на строительство из бюджета на мой взгляд говорит об успешном завершении переговоров о муниципализации школы, о которых застройщик ранее писал в социальной сети ВКонтакте.


нормальный .pdf
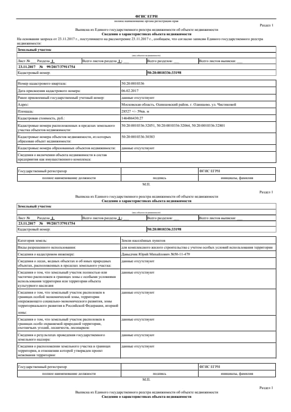
Выписка из ЕГРН об объекте недвижимости-school.pdf

А что означает "Для комплексного жилого строительства"(2-ая страница)? Не получится ли так, что на этом куске земли будет многоквартирный дом?
Вложения
ФСК «Лидер» избавился от очередного социального обязательства. - Земельный участок под школу.jpg


Hamster
Сообщения: 162
Зарегистрирован: 06 мар 2017, 19:33
Дом: Сколковская, 7а (корп.4)

Re: ФСК «Лидер» избавился от очередного социального обязательства.

30 ноя 2017, 12:04

Земельный участок под школу выделялся из большого участка под застройку. Вид разрешённого использования как бы унаследован от "родительского" участка. Должны сменить через какое-то время наверное.

Строительство жилых домов на участке школы вряд ли возможно. Это будет нарушением проекта, тем более, земля уже в муниципальной собственности и в генплане городского поселения, по которому недавно шли публичные слушания наша школа заложена.

hakmor
Сообщения: 184
Зарегистрирован: 22 фев 2017, 12:52
Дом: Сколковская, 7а (корп.4)

Re: ФСК «Лидер» избавился от очередного социального обязательства.

30 ноя 2017, 12:36

Hamster писал(а):Источник цитаты Земельный участок под школу выделялся из большого участка под застройку. Вид разрешённого использования как бы унаследован от "родительского" участка. Должны сменить через какое-то время наверное.

Строительство жилых домов на участке школы вряд ли возможно. Это будет нарушением проекта, тем более, земля уже в муниципальной собственности и в генплане городского поселения, по которому недавно шли публичные слушания наша школа заложена.

Так зная Гусева, то это участок он может легко продать другому же застройщику, или же продаст опять Лидеру, но под другим юр. Лицом. Это еще тот махинатор и продажник, придумает схему и продаст, да еще и бюджетные деньги которые выделены на школу заберет. В Одинцово уже каждый уголок продан.


Вернуться в «Новости»