Добрый день.
Предлагаю выкладывать здесь свои замеры, фото и наблюдения по поводу различий проектов квартир и реальных, которые сдают.
Начнем - 2-х комнатная квартира, 60,5 кв. м, 8 корпус, 6 секция, 6 этаж.
Использовал при замерах лазерную рулетку.
https://yadi.sk/d/lnwwetgy3Fu5Xi
- Лента: • последние изображения • активные темы
Реальные размеры и планировки квартир
- Shuvalov CARS
- Сообщения: 8
- Зарегистрирован: 16 мар 2017, 14:16
- Дом: Сколковская, 3в (корп.8)
- Swimmer
- Сообщения: 746
- Зарегистрирован: 08 фев 2017, 09:21
- Дом: Сколковская, 7б (корп.3)
Re: Реальные размеры и планировки квартир
Файл из сообщения выше уже недоступен. Есть у кого копия?
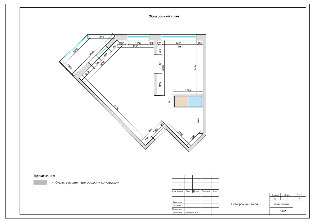
Также выкладываю обмерочный план однокомнатной квартиры из 8 корпуса 5 секции 44,3 кв м.
Также выкладываю обмерочный план однокомнатной квартиры из 8 корпуса 5 секции 44,3 кв м.
Реклама
-
Топтыгин
- Сообщения: 209
- Зарегистрирован: 02 мар 2017, 12:55
- Дом: Сколковская, 3в (корп.8)
Re: Реальные размеры и планировки квартир
У меня завалялся план трешки из четвертой секции восьмого корпуса. Измерения делал не я. Брал со старого форума (там кто-то выкладывал).
- Вложения
-
- 8_4_3.pdf
- (49.07 КБ) 1542 скачивания
- françoise
- Сообщения: 226
- Зарегистрирован: 21 фев 2017, 18:06
- Дом: Сколковская, 3в (корп.8)
Re: Реальные размеры и планировки квартир
Я тоже дополню тему 

-
WarX
- Сообщения: 251
- Зарегистрирован: 09 мар 2017, 18:48
- Дом: Сколковская, 3в (корп.8)
Re: Реальные размеры и планировки квартир
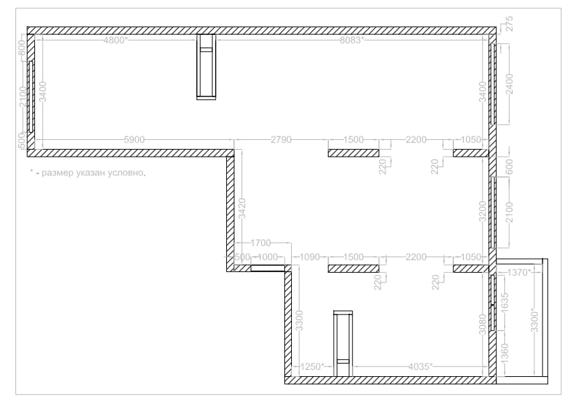
Приблизительные замеры однушки в 1 / 3 секциях 8 корпуса, 44.6 кв.м.
Замеры снимались с 3 этажа, 1 секции.
Ыы, не успел
Замеры снимались с 3 этажа, 1 секции.
Ыы, не успел

- miy
- Сообщения: 74
- Зарегистрирован: 15 май 2017, 11:32
- Дом: Сколковская, 1г (корп.11)
Re: Реальные размеры и планировки квартир
Swimmer писал(а):Источник цитаты план однокомнатной квартиры из 8 корпуса 5 секции 44,3 кв м.
Какой этаж?

- françoise
- Сообщения: 226
- Зарегистрирован: 21 фев 2017, 18:06
- Дом: Сколковская, 3в (корп.8)
Re: Реальные размеры и планировки квартир
WarX писал(а):Источник цитаты Приблизительные замеры однушки в 1 / 3 секциях 8 корпуса, 44.6 кв.м.
Замеры снимались с 3 этажа, 1 секции.
я опередила

- Swimmer
- Сообщения: 746
- Зарегистрирован: 08 фев 2017, 09:21
- Дом: Сколковская, 7б (корп.3)
Re: Реальные размеры и планировки квартир
miy, без понятия - план не мой.
-
ANONYMVS
- Сообщения: 38
- Зарегистрирован: 26 май 2017, 11:45
Re: Реальные размеры и планировки квартир
Swimmer писал(а):Источник цитаты Файл из сообщения выше уже недоступен. Есть у кого копия?
Также выкладываю обмерочный план однокомнатной квартиры из 8 корпуса 5 секции 44,3 кв м.
Obmerochnyi_774_plan.pdf
на плане указана площадь 43 метра, это в итоге фактическая площадь получилась меньше, или измерения, может, не точные?
- françoise
- Сообщения: 226
- Зарегистрирован: 21 фев 2017, 18:06
- Дом: Сколковская, 3в (корп.8)
Re: Реальные размеры и планировки квартир
ANONYMVS писал(а):Источник цитаты на плане указана площадь 43 метра, это в итоге фактическая площадь получилась меньше, или измерения, может, не точные?
Это замеры девушки из 5 секции, она с дизайнером ходила мерить для проекта, этаж не знаю.
Вернуться в «Дизайн-проекты, планировки, перепланировки»
