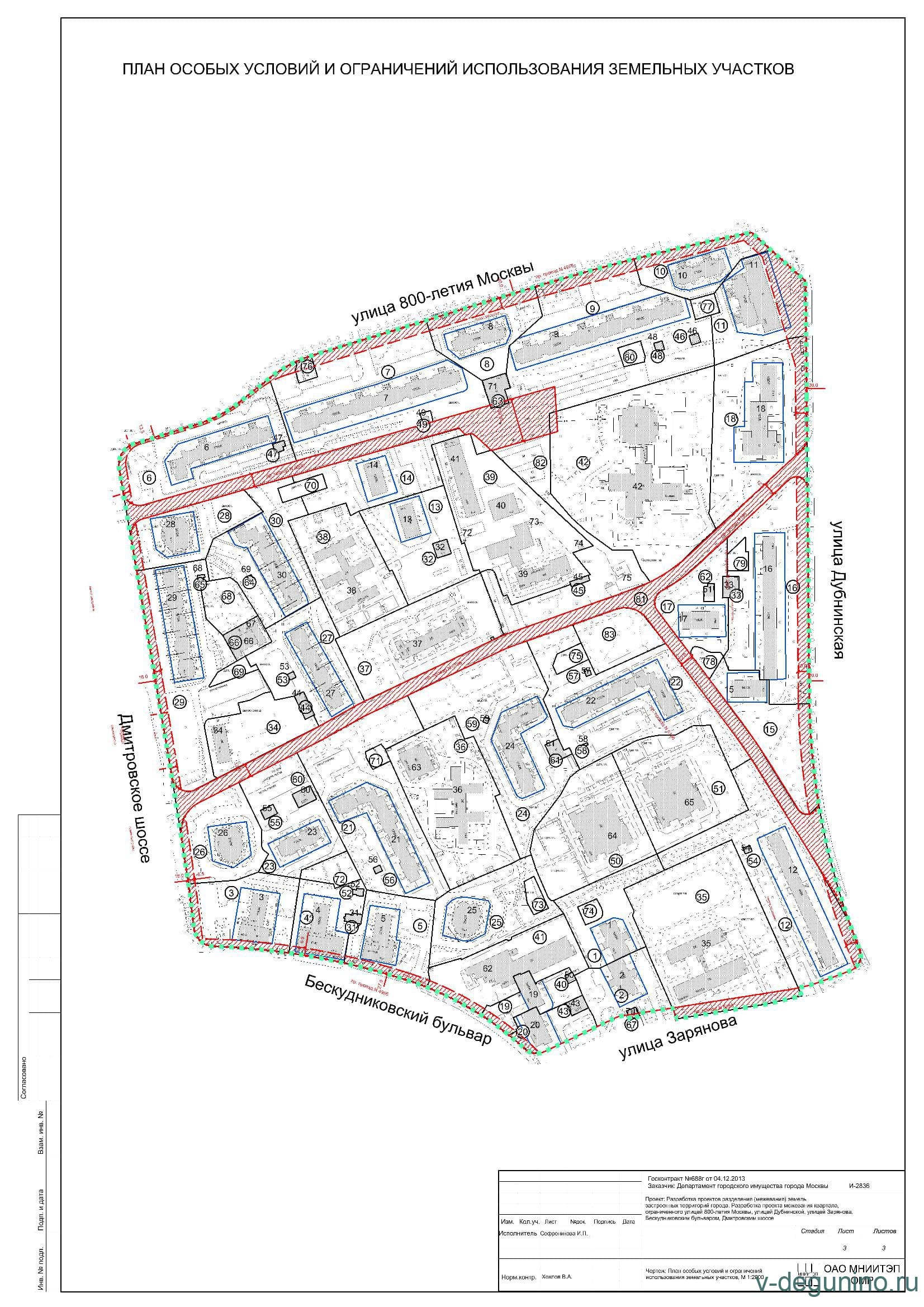
На публичные слушания представляется проект межевания территории квартала районов Бескудниковский и Восточное Дегунино ограниченного: улицей 800-летия Москвы, улицей Дубнинской, улицей Зарянова, Бескудниковский бульваром, Дмитровским шоссе.
Информационные материалы по теме публичных слушаний представлены на экспозиции в помещении административного здания по адресу: Бескудниковский бульвар,
д. 16А (холл, 1 этаж) и на официальном сайте управы Бескудниковского района: https://beskudnikovo.mos.ru в разделе «Публичные слушания».
Экспозиция открыта с 09 апреля 2019 года по 17 апреля 2019 года (включительно).
Часы работы: с понедельника по четверг с 9.00 до 12.00 часов и с 14.00 до 19.00, пятница с 9.00 до 16.00 часов (13, 14 апреля 2019 года – выходные дни).
На экспозиции проводятся консультации по теме публичных слушаний.
Собрание участников публичных слушаний состоится 25 апреля 2019 года в 19-00 часов по адресу: Бескудниковский бульвар, д. 53А (ГБУДО г. Москвы «Детская школа искусств им. И.С. Баха»), 1 этаж.
Время начала регистрации участников 18.00 часов.
В период проведения публичных слушаний их участники имеют право представить свои предложения и замечания по обсуждаемому проекту посредством:
- записи предложений и замечаний в период работы экспозиции;
- выступления на собрании участников публичных слушаний;
- внесения записи в книгу (журнал) регистрации участвующих в собрании участников публичных слушаний;
- подачи в ходе собрания письменных предложений и замечаний;
- направления в течение недели со дня проведения собрания участников публичных слушаний письменных предложений, замечаний в Окружную комиссию.
Номера контактных справочных телефонов управы Бескудниковского района города Москвы: 8(499)480-04-05, 8(499)480-04-43 и Окружной комиссии по вопросам градостроительства, землепользования и застройки при Правительстве Москвы по Северному административному округу города Москвы: (495)611-16-69.
Почтовый адрес Окружной комиссии по вопросам градостроительства, землепользования и застройки при Правительстве Москвы по Северному административному округу города Москвы: 127422, г. Москва, ул. Тимирязевская, д. 27.
Электронный адрес Окружной комиссии по вопросам градостроительства, землепользования и застройки при Правительстве Москвы по Северному административному округу города Москвы: [email protected].
Электронный адрес управы Бескудниковского района города Москвы: [email protected]
Окружная комиссия по вопросам
градостроительства, землепользования и застройки
при Правительстве Москвы
по Северному административному округу
города Москвы
Ссылки на материалы

