Госзакупка: Выполнение работ по благоустройству территории парка им. С. Н. Федорова в 2018 г.

Протест жителей против захвата земли и капитального строительства в природном Парке им. С. Фёдорова.

Парк Фёдорова - Особо Охраняемая Природная Территория (ООПТ).
Новая тема Ответить
Аватара пользователя

Автор темы
Ефанов Сергей
Администратор
Сообщения: 7507
Зарегистрирован: 08 фев 2015, 06:07
Откуда: Москва
Благодарил (а): 166 раз
Поблагодарили: 64 раза
Контактная информация:

Госзакупка: Выполнение работ по благоустройству территории парка им. С. Н. Федорова в 2018 г.

Сообщение Ефанов Сергей » 02 июн 2018, 18:30 #11

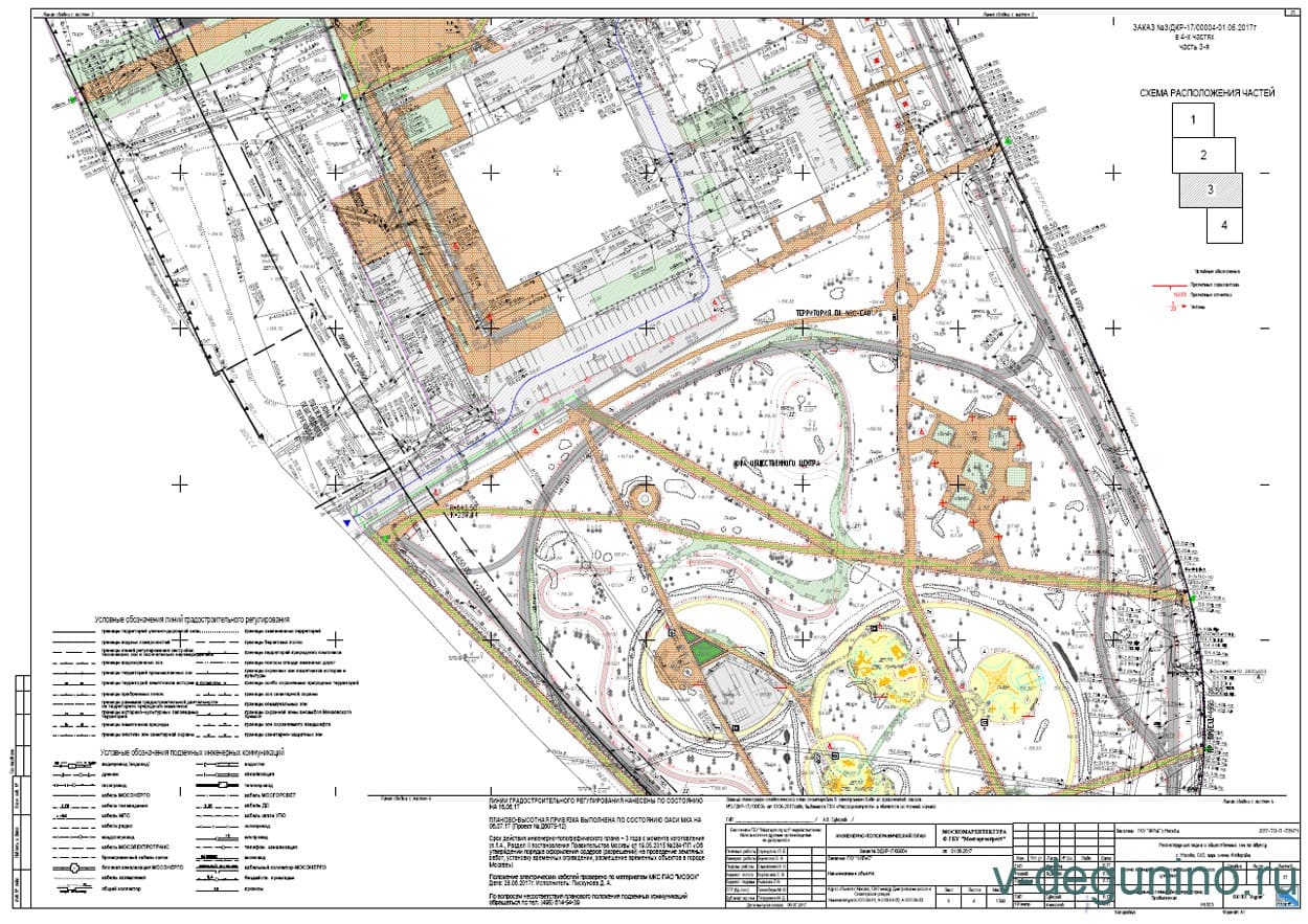
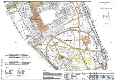
Госзакупка № 0173200001418000273 от 29.03.2018 г.

Наименование объекта закупки:
Выполнение работ по комплексному благоустройству территории парка им. С.Н.Федорова по адресу: г. Москва, САО, между Дмитровским шоссе и Селигерской улицей.

Дата проведения аукциона в электронной форме 23.04.2018 г.

Начальная (максимальная) цена контракта 905 140 310,00 рублей.

Подрядчик.jpg


План.jpg


Карта.jpg

Теги:

#11
Аватара пользователя

Автор темы
Ефанов Сергей
Администратор
Сообщения: 7507
Зарегистрирован: 08 фев 2015, 06:07
Откуда: Москва
Благодарил (а): 166 раз
Поблагодарили: 64 раза
Контактная информация:

Госзакупка: Выполнение работ по благоустройству территории парка им. С. Н. Федорова в 2018 г.

Сообщение Ефанов Сергей » 05 апр 2019, 19:18 #12

UPD
Нет, осталось выполнить работ на 24 миллиона рублей (акт от 27.12.2018 года).
Платежи на сумму 835,5 миллиона рублей успешно прошли.

Как будут доделывать - не понятно....

#12

Новая тема Ответить

Вернуться в «Протест жителей против строительства в природном Парке им. С. Фёдорова»

Кто сейчас на конференции

Сейчас этот форум просматривают: нет зарегистрированных пользователей и 4 гостя

Информеры

Рейтинг@Mail.ru Яндекс.Метрика

Войти через социальную сеть

Быстрая регистрация и авторизация через социальную сеть ®

Вход

Имя пользователя: Пароль: