31.01.2019 г. Собрание публичных слушаний "Храм у экс-кинотеатра Ереван в парке Фёдорова" Бескудниковский р-н

Протест жителей против захвата земли и капитального строительства в природном Парке им. С. Фёдорова.

Парк Фёдорова - Особо Охраняемая Природная Территория (ООПТ).
Новая тема Ответить
Аватара пользователя

Автор темы
Ефанов Сергей
Администратор
Сообщения: 7509
Зарегистрирован: 08 фев 2015, 06:07
Откуда: Москва
Благодарил (а): 166 раз
Поблагодарили: 64 раза
Контактная информация:

31.01.2019 г. Собрание публичных слушаний "Храм у экс-кинотеатра Ереван в парке Фёдорова" Бескудниковский р-н

Сообщение Ефанов Сергей » 15 янв 2019, 18:26 #11

31 января фактически будет 2 (два) публичных слушания.
Причём на каждый вопрос отводят по 30 минут (!!!).
И нужно будет оставить записи в 2 (двух) журналах.
Аналогично и с ЭкспозициямИ - 2 журнала.


Экспозиция:
открыта с 21 января 2019 года по 29 января 2019 года (включительно).
Часы работы:
в рабочие дни – с понедельника по четверг с 9.00 до 12.00 часов и с 14.00 до 17.00, пятница с 9.00 до 15.45 часов.
Адрес: Управа района Бескудниковский (Бескудниковский бульвар, д. 16А (холл, 1 этаж).

Необходимо жителям посетить и оставить своё мнение (запись) в журнале. Сфотографировать.

Собрание публичных слушаний:
31 января 2019 года в 19-00 часов

Адрес: Дмитровское шоссе, д. 66 ( Библиотека № 38 у метро "Верхние Лихоборы" напротив храма св. Иннокентия).

Время начала регистрации участников 18.00 часов.

Необходимо заранее (до 19.00) прийти, оставить своё мнение (запись) в журнале. Сфотографировать.
По возможности выступить на Собрании.

----------------------------------

Оповещение о проведении публичных слушаний (фактически будет 2 слушания).
На публичные слушания представляются:

1. Проект планировки части территории объекта природного комплекса Северного административного округа города Москвы №80 «Парк у кинотеатра «Ереван» по Дмитровскому шоссе».

2. Проект внесения изменений в Правила землепользования и застройки города Москвы в части территории объекта природного комплекса № 80-САО «Парк у кинотеатра Ереван» по Дмитровскому шоссе (Дмитровское шоссе, вл.82).

Информационные материалы по темам публичных слушаний представлены на экспозициях в помещении административного здания по адресу:
Бескудниковский бульвар, д. 16А (холл, 1 этаж),
на официальном сайте управы Бескудниковского района: в разделе «Публичные слушания».

Экспозиции открыты с 21 января 2019 года по 29 января 2019 года (включительно).

Часы работы: в рабочие дни – с понедельника по четверг с 9.00 до 12.00 часов и с 14.00 до 17.00, пятница с 9.00 до 15.45 часов.

На экспозициях проводятся консультации по темам публичных слушаний.

Собрание участников публичных слушаний по Проект планировки части территории объекта природного комплекса Северного административного округа города Москвы №80 «Парк у кинотеатра «Ереван» по Дмитровскому шоссе» состоится 31 января 2019 года в 19-00 часов по адресу: Дмитровское шоссе, д. 66 (ГБУК г. Москвы ЦБС САО, библиотека № 38), 1 этаж.

Собрание участников публичных слушаний по проекту внесения изменений в Правила землепользования и застройки города Москвы в части территории объекта природного комплекса № 80-САО «Парк у кинотеатра Ереван» по Дмитровскому шоссе (Дмитровское шоссе, вл.82) состоится 31 января 2019 года в 19-30 часов по адресу: Дмитровское шоссе, д. 66 (ГБУК г. Москвы ЦБС САО, библиотека № 38), 1 этаж.

Время начала регистрации участников 18.00 часов.

В период проведения публичных слушаний их участники имеют право представить свои предложения и замечания по обсуждаемому проекту посредством:

- записи предложений и замечаний в период работы экспозиции;

- выступления на собрании участников публичных слушаний;

- внесения записи в книгу (журнал) регистрации участвующих в собрании участников публичных слушаний;

- подачи в ходе собрания письменных предложений и замечаний;

- направления в течение недели со дня проведения собрания участников публичных слушаний письменных предложений, замечаний в Окружную комиссию.

Номера контактных справочных телефонов Управы Бескудниковского района: 8 (499) 480-04-05, 8(499)-480-04-43 и Окружной комиссии по вопросам градостроительства, землепользования и застройки при Правительстве Москвы по Северному административному округу города Москвы: (495)611-16-69.

Почтовый адрес Окружной комиссии по вопросам градостроительства, землепользования и застройки при Правительстве Москвы по Северному административному округу города Москвы: 127422, г. Москва, ул. Тимирязевская, д. 27.

Электронный адрес Окружной комиссии по вопросам градостроительства, землепользования и застройки при Правительстве Москвы по Северному административному округу города Москвы: [email protected].

Электронный адрес управы Бескудниковского района: [email protected]

Окружная комиссия по вопросам градостроительства,

землепользования и застройки при Правительстве Москвы по Северному административному округу города Москвы

Ссылки на материалы: План , Проект планировки, ПЗЗ ПК№80 Парк у кинотеатра Ереван по Дмитровскому ш, ПЗЗ ПК№80 Парк у кинотеатра Ереван по Дмитровскому ш 2

https://beskudnikovo.mos.ru/public-hear ... c-hearing/

ПС_31.01.2019_Бескудниковск.jpg


Храм_Ереван.jpg


-------------------------
Просвещение: Про проведение Публичных слушаний

Теги:

#11
Аватара пользователя

Автор темы
Ефанов Сергей
Администратор
Сообщения: 7509
Зарегистрирован: 08 фев 2015, 06:07
Откуда: Москва
Благодарил (а): 166 раз
Поблагодарили: 64 раза
Контактная информация:

31.01.2019 г. Собрание публичных слушаний "Храм у экс-кинотеатра Ереван в парке Фёдорова" Бескудниковский р-н

Сообщение Ефанов Сергей » 21 янв 2019, 20:03 #12

Ефанов Сергей писал(а):Источник цитаты - благоустройство и озеленение территории храмового комплекса с устройством площадки, предназначенной для временного хранения автотранспорта (для маломобильных групп населения, спецавтотранспорта, в том числе ритуального)

Не понятно почему служителям храма требуется отдельная автостоянка? Ради их автомобилей предлагается вырубить деревья.
- Про ритуальный транспорт совсем замечательно:
гуляешь такой с ребёнком в парке, а тут гробы, гробы, гробы мимо...
- Про "места для инвалидов" ещё в 60-х Леонид Гайдай показал


#12
Аватара пользователя

Автор темы
Ефанов Сергей
Администратор
Сообщения: 7509
Зарегистрирован: 08 фев 2015, 06:07
Откуда: Москва
Благодарил (а): 166 раз
Поблагодарили: 64 раза
Контактная информация:

31.01.2019 г. Собрание публичных слушаний "Храм у экс-кинотеатра Ереван в парке Фёдорова" Бескудниковский р-н

Сообщение Ефанов Сергей » 21 янв 2019, 20:27 #13

Обсуждение проходящих Публичных слушаний по строительству храма в парке Федорова в районной группе соцсети Вконтакте

https://vk.com/wall-65006599_684696

#13
Аватара пользователя

Автор темы
Ефанов Сергей
Администратор
Сообщения: 7509
Зарегистрирован: 08 фев 2015, 06:07
Откуда: Москва
Благодарил (а): 166 раз
Поблагодарили: 64 раза
Контактная информация:

31.01.2019 г. Собрание публичных слушаний "Храм у экс-кинотеатра Ереван в парке Фёдорова" Бескудниковский р-н

Сообщение Ефанов Сергей » 23 янв 2019, 21:26 #14

С 1 по 7 февраля у жителей ещё будет время письменно (через Интернет) направить свои мнения по теме проходящих Публичных слушаниях.

Сейчас важно:
1. Оставить запись в журналаХ на Экспозиции по 29 января включительно,

2. Оставить запись в журналаХ на Собрании 31 января и по возможности выступить в микрофон.

#14
Аватара пользователя

Автор темы
Ефанов Сергей
Администратор
Сообщения: 7509
Зарегистрирован: 08 фев 2015, 06:07
Откуда: Москва
Благодарил (а): 166 раз
Поблагодарили: 64 раза
Контактная информация:

31.01.2019 г. Собрание публичных слушаний "Храм у экс-кинотеатра Ереван в парке Фёдорова" Бескудниковский р-н

Сообщение Ефанов Сергей » 30 янв 2019, 02:33 #15

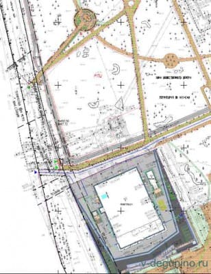
Посмотрел проектную документацию "Благоустройство парка им. С. Фёдорова" за 2018 год:
- фактически уже тогда этот земельный участок отдавали РПЦ;

Проект_Фёдорова_2.jpg

Проект_Фёдорова_3.jpg


- земельный участок чуть меньше кинотеатра Ереван
Проект_Фёдорова_4.jpg


- выступавший на Совете депутатов МО Бескудниковский говорит не правду - благоустройство земельного участка было - завозилась свежая почва и высаживался газон.
Фото газона октябрь 2018 года.

Зелёное_место_Ереван.jpg
Вложения
Проект_Фёдорова_1.jpg

#15
Аватара пользователя

Автор темы
Ефанов Сергей
Администратор
Сообщения: 7509
Зарегистрирован: 08 фев 2015, 06:07
Откуда: Москва
Благодарил (а): 166 раз
Поблагодарили: 64 раза
Контактная информация:

31.01.2019 г. Собрание публичных слушаний "Храм у экс-кинотеатра Ереван в парке Фёдорова" Бескудниковский р-н

Сообщение Ефанов Сергей » 01 фев 2019, 00:21 #16

Собрание публичных слушаний прошли жарко...
Есть единение жителей - это радует.

#16
Аватара пользователя

Автор темы
Ефанов Сергей
Администратор
Сообщения: 7509
Зарегистрирован: 08 фев 2015, 06:07
Откуда: Москва
Благодарил (а): 166 раз
Поблагодарили: 64 раза
Контактная информация:

31.01.2019 г. Собрание публичных слушаний "Храм у экс-кинотеатра Ереван в парке Фёдорова" Бескудниковский р-н

Сообщение Ефанов Сергей » 01 фев 2019, 00:22 #17

Последний этап 2-х (двух) Публичных слушаний - очень важный!

С 1 по 7 февраля (включительно) каждый житель/собственник должен отправить по 2 письма/отзыв на представленные проекты (по одному на публичное слушание) в адрес Окружной комиссии по вопросам градостроительства, землепользования, и застройки при Правительстве Москвы по северному административному округу через:
- Электронную приёмную Префектуры САО sao.mos.ru/contacts/reception/
и
- сайт mos.ru с авторизацией через Госуслуги (желательно) кому: Правительству Москвы.

Просто вдруг ваши письма в Префектуре САО потеряются, а Правительство им перенаправит с регистрационным номером.
Учитывая организацию проведения Публичных слушаний такого нельзя исключать.

Тут можно писать многостраничные трактаты, например указывая как проводилась Экспозиция и Собрание Публичных слушаний, как проводилось информирование о проходящих ПС со стороны управы района (которая за это отвечает), и т. д. и т. п.

Главное сформировать чёткую мысль, даже можно зафиналить трактат "Выводы": Я категорически против представленного Проекта на Публичные слушания и против строительства ЛЮБОГО на природной территории парка им. С. Фёдорова.

#17
Аватара пользователя

Автор темы
Ефанов Сергей
Администратор
Сообщения: 7509
Зарегистрирован: 08 фев 2015, 06:07
Откуда: Москва
Благодарил (а): 166 раз
Поблагодарили: 64 раза
Контактная информация:

31.01.2019 г. Собрание публичных слушаний "Храм у экс-кинотеатра Ереван в парке Фёдорова" Бескудниковский р-н

Сообщение Ефанов Сергей » 02 фев 2019, 04:19 #18

Есть у меня почти 4 часа записи диктофонных.
Интересных мест не много.
Сразу скажу - Сатанинских записей, или разговоров могущих заинтересовать Следственный комитет там нет.

#18
Аватара пользователя

Автор темы
Ефанов Сергей
Администратор
Сообщения: 7509
Зарегистрирован: 08 фев 2015, 06:07
Откуда: Москва
Благодарил (а): 166 раз
Поблагодарили: 64 раза
Контактная информация:

31.01.2019 г. Собрание публичных слушаний "Храм у экс-кинотеатра Ереван в парке Фёдорова" Бескудниковский р-н

Сообщение Ефанов Сергей » 07 фев 2019, 21:07 #19

5 февраля в районе Бескудниково города Москвы прошла встреча местных жителей для сбора подписей против строительства храма на территории парка имени Святослава Федорова, единственной зеленой зоны отдыха в округе.


#19
Аватара пользователя

Автор темы
Ефанов Сергей
Администратор
Сообщения: 7509
Зарегистрирован: 08 фев 2015, 06:07
Откуда: Москва
Благодарил (а): 166 раз
Поблагодарили: 64 раза
Контактная информация:

31.01.2019 г. Собрание публичных слушаний "Храм у экс-кинотеатра Ереван в парке Фёдорова" Бескудниковский р-н

Сообщение Ефанов Сергей » 07 фев 2019, 22:17 #20

Храм вместо сквера: зачем РПЦ и мэрия создают новую "горячую точку" в Бескудниково?" Участвуют: историк Александр Шубин и жители Бескудникова - защитники сквера им. Святослава Фёдорова от захвата РПЦ, ведущий - Сергей Менжерицкий


#20
Аватара пользователя

Автор темы
Ефанов Сергей
Администратор
Сообщения: 7509
Зарегистрирован: 08 фев 2015, 06:07
Откуда: Москва
Благодарил (а): 166 раз
Поблагодарили: 64 раза
Контактная информация:

31.01.2019 г. Собрание публичных слушаний "Храм у экс-кинотеатра Ереван в парке Фёдорова" Бескудниковский р-н

Сообщение Ефанов Сергей » 07 фев 2019, 22:40 #21

Жители Бескудниково против капитальной застройки парка им. С. Фёдорова в Москве / LIVE 01.02.19


#21

Новая тема Ответить

Вернуться в «Протест жителей против строительства в природном Парке им. С. Фёдорова»

Кто сейчас на конференции

Сейчас этот форум просматривают: нет зарегистрированных пользователей и 3 гостя

Информеры

Рейтинг@Mail.ru Яндекс.Метрика

Войти через социальную сеть

Быстрая регистрация и авторизация через социальную сеть ®

Вход

Имя пользователя: Пароль: