PetrovS писал(а):Источник цитаты На мой взгляд лучший автоматический выключатель
А на мой взгляд, АВВ.
PetrovS писал(а):Источник цитаты На мой взгляд лучший автоматический выключатель
tupos писал(а):Источник цитаты gosha, для данного предохранителя необходимо приложить ток не менее 350 А, что бы он перегорел за 5 секунд
tupos писал(а):Источник цитаты При токе 125 А предохранитель не сработает никогда
tupos писал(а):Источник цитаты gosha, на ВТХ отметил красной чертой. По оси Х - ток, по оси Y - время.

.tupos писал(а):Источник цитаты Кактус, Сейчас распечатал ВТХ и грубо разбил шкалу до 125 А - срабатывание предохранителя возможно от ~ 3000 с =50 мин.
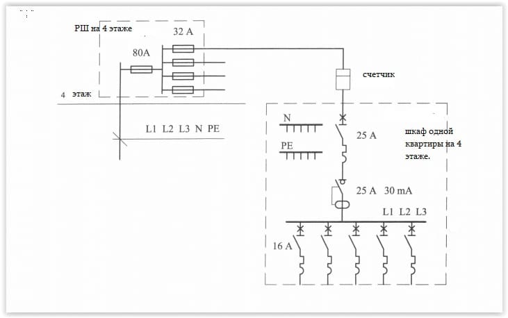
.tupos писал(а):Источник цитаты Кстати, а почему вы к этому предохранителю прицепились? Необходимо рассматривать предохранители на 32 А? Они должны отключаться за 0,4 с.
gosha писал(а):Источник цитаты как понимать Время-токовую характеристику предохранителя?
tupos писал(а):Источник цитаты gosha, по уточненным данным, предохранитель должен сработать за 50 мин. viewtopic.php?p=2080#p2080
gosha писал(а):Источник цитаты на эгзамене
elalex писал(а):Источник цитатыКактус писал(а):Источник цитаты При токе 125 А предохранитель не сработает никогда
Я считаю, минимальный ток срабатывания предохранителя - 2 номинала, поэтому он непригоден для защиты силовых цепей, где есть длительные перегрузки до 2 номиналов.
Применение предохранителей для защиты кабельных линий - это идиотизм советской системы электроснабжения.
.gosha писал(а):Источник цитаты gosha » Сегодня, 10:52
tupos писал(а):
Источник цитаты При токе 125 А предохранитель не сработает никогда
tupos , пожалуйста скажите почему не сработает? исходя из рисунка как вы это понимаете? я не понимаю Время-токовую характеристику предохранителя. В этом моя беда, как понимать Время-токовую характеристику предохранителя?
.Вернуться в «Автоматические выключатели и предохранители»
Сейчас этот форум просматривают: нет зарегистрированных пользователей и 4 гостя