Подключение автомата в разрыв линии

Выбор, установка, подключение, паспорта, характеристики, устройство и настройка автоматических выключателей и предохранителей различных производителей.
Аватара пользователя
Rustok
Сообщения: 134
Зарегистрирован: 03 апр 2017, 20:02
Репутация: 19
Контактная информация:

Подключение автомата в разрыв линии

Сообщение Rustok » 07 апр 2017, 13:26

Частный дом. В распредкоробку (она для освещения) на втором этаже заходит кабель в ВВГнг 3*2,5 , который защищён автоматом C16A, УЗО не стоит. Из распредкоробки выходит один кабель на чердак ВВГнг 2*1,5. На чердаке я сделал временно две розетки для роутера, медиаконвертора + повесил лампочку.
Планирую чердак оборудовать под спальню, соответственно будут активно пользоваться розетки (зарядки, ноут и прочее маломощное оборудование) и освещение. Нужно ли защищать эту линию автоматом номиналом 10А или всё-таки хватит того, который на 16А? Ставить ли УЗО? Как мне кажется, то УЗО ставить нужно, а автомат менять не обязательно, но хотелось бы всё-таки понять, как нужно сделать. Кабель на 3*2,5 поменять нет возможности, так как коробки зашпаклёваны и заклеены обоями, их расположение мне тоже не известно :mad:

Дополнительно хотелось бы знать, как ставятся автоматы в разрыв, если такое допускается? Куда и как их крепить, они же все на DIN-рейки идут? Как разделывать кабель, чтобы подключить фазу к автомату, мне кажется, что там какая-то порнография получится?
Я не электрик :yes:
Реклама
Аватара пользователя
elalex
Сообщения: 7423
Зарегистрирован: 21 июл 2015, 08:08
Репутация: 591
Откуда: [email protected]
Контактная информация:

Подключение автомата в разрыв линии

Сообщение elalex » 07 апр 2017, 14:56

1.УЗО нужно ставить как можно ближе к вводу питания в дом.
2.Думаю, автомат С16 не защитит кабель 2,5кв:
- автоматы С - городские, не для деревни
- нужные буквы и числа на автоматах определяются исключительно по результатам измерений петель Фаза-ноль
- автоматы больше 13А не защищают розетки от перегруза
3.Светильники - защищают автоматы не более 6А.
4.Все линии должны иметь заземление.
5.Обычно автоматы ставятся в местах уменьшения сечения кабелей или их разветвления. Скажем, около существующих соединительных коробок, открыто или скрыто.
6.Автоматы в разрыв кабеля ставятся обыкновенно. К стене прибивается или в стену врубается щиток, в него ставятся автоматы, к автоматам подводятся провода. Кабели разделываются ножом. Посмотрите картинки и видео в Инете. Электрику делают не боги. Не научитесь - сделаете порнографию.
7.Хозяину в своём доме допускается всё, даже сжечь его. Электрических правил для хозяев не существует, они существуют только для официальных электриков.
8.Не знаю, кто Вы в доме, но в домах всегда есть тяжёлые и опасные проблемы. Захотите разобраться - покажите и расскажите про всю электрику в доме.
Одиночный свободный электрик
Опыт ремонтов квартир 20лет
Высшее электрическое образование
Бывший инженер-электрик
Пенсионер
64 года
Пишу для владельцев частного жилья
Запасной E–mail для россиян: [email protected]
Аватара пользователя
Rustok
Сообщения: 134
Зарегистрирован: 03 апр 2017, 20:02
Репутация: 19
Контактная информация:

Подключение автомата в разрыв линии

Сообщение Rustok » 07 апр 2017, 15:36

Спасибо за ответ.

1.Так и сделано для розеток.
2,4 - значит придётся менять кабель к чердаку. Заземление в течении 2х лет так никто и не сделал. Этим буду заниматься летом, сейчас грунт промёрзший, не выкопать. Перебои с электричеством возникают 4-5 раз в месяц
3. Светильники - это я про люстры и прочее. Хотя по логике да, 6А - более чем. Это ж более 1кВт
5,6 Если всё-таки попробую поменять кабель, то разрыв не понадобится. Если не смогу поменять, то нужно будет покупать маленький щиток, но тогда как быть с заземлением?
7. Я не электрик, но всё-таки очень хочу выполнять и стараюсь выполнять электрические правила (Даже стал покупать НШВИ, купил клещи для общима, алюминий с медью перестал крутить и прочее). Спасибо этому форуму, сайту.
8. Я в этом семье появился года полтора назад. А в этом доме появился с января, наверное (не вникайте). Только тогда понял масштаб пздца, который там сейчас.

Сейчас скину проект сюда, который должен был быть, но там расположение некоторый выключателей, розеток и прочее не такое, какое есть.
Сегодня ещё буду менять автомат на вводе, так как со слов электрика, который там это всё делал, автомат клинит, взводится только чуть ли не с удара молотка. Да, да, да... Этот электрик придёт в это воскресенье кое-что переделывать и доделывать, но на этом с ним общение, наверное, будет закончено. Уже есть мысли нанять контору, которая произведёт инспекцию и даст заключение, но это опять же деньги. Летом, думаю это всё сделать.
Я не электрик :yes:
Аватара пользователя
elalex
Сообщения: 7423
Зарегистрирован: 21 июл 2015, 08:08
Репутация: 591
Откуда: [email protected]
Контактная информация:

Подключение автомата в разрыв линии

Сообщение elalex » 07 апр 2017, 15:55

1.Зачем менять кабель на чердак?
2.А что копать для заземления?
3.Провод заземления нужно развести в коробе во все нужные места.
4.Не все электрические правила стоит выполнять. Некоторые из них - идиотские.
5.Я 20 лет кручу провода безо всяких наконечников и клещей. Думаю, они лишние.
6.Вы не поняли процедуры выбора автоматов. Они нахрапом не меняются.
7.Не думаю, что какой электрик или контора знает больше, чем изложено на форуме. Во всяком случае, сначала почитайте с месяц форум, только потом принимайте решение. Иначе лишних расходов не избежать.
Одиночный свободный электрик
Опыт ремонтов квартир 20лет
Высшее электрическое образование
Бывший инженер-электрик
Пенсионер
64 года
Пишу для владельцев частного жилья
Запасной E–mail для россиян: [email protected]
Аватара пользователя
Rustok
Сообщения: 134
Зарегистрирован: 03 апр 2017, 20:02
Репутация: 19
Контактная информация:

Подключение автомата в разрыв линии

Сообщение Rustok » 07 апр 2017, 16:04

1. распредкоробки все замурованны :mad:
2. проходные переключатели я вообще не понял, как реализованны. В вс придёт электрик и сам будет голову ломать.
3. В ШУЭ стоит УЗО на 50A 100 mA
4. QF1 в распредшкафу взводится с усилием. Буду менять, купил Шнайдер
5. в шкафе паутина.
6. Там, где распределительный шкаф - это гараж и там только один светильник сделан пока что, так как гараж не сделан.
7. Над распределительным шкафом на по схеме - это котельная на дровах. Светильника и розеток тоже пока нет, в котельной только котёл и пара насосов.
8. Бани ещё нет.
9. Когда было КЗ на втором этаже в розетке, отключился QF общ.

PDF прикрепить не могу. Так что дам ссылку на схему https://yadi.sk/i/KXDAYIMR3GkUrJ
Ну и паутина в распредшкафу
для форума.jpg
Я не электрик :yes:
Аватара пользователя
Rustok
Сообщения: 134
Зарегистрирован: 03 апр 2017, 20:02
Репутация: 19
Контактная информация:

Подключение автомата в разрыв линии

Сообщение Rustok » 07 апр 2017, 16:11

elalex писал(а):Источник цитаты 1.Зачем менять кабель на чердак?

там нет заземляющего провода. Кабель 2*1,5. Я хочу розетки. Заземляющий откуда взять?
elalex писал(а):Источник цитаты 2.А что копать для заземления?

В земле траншеи не надо чтоли? Я ж виде на этом же сайте и смотрел, как оно должно быть сделанно.
elalex писал(а):Источник цитаты 3.Провод заземления нужно развести в коробе во все нужные места.

Это сделано везде, кроме чердака.
elalex писал(а):Источник цитаты 4.Не все электрические правила стоит выполнять. Некоторые из них - идиотские.

Спросить не стану, вам виднее.
elalex писал(а):Источник цитаты 5.Я 20 лет кручу провода безо всяких наконечников и клещей. Думаю, они лишние.

Ну многопроволочные кабеля всё-таки я бы предпочёл оконечивать.
elalex писал(а):Источник цитаты 6.Вы не поняли процедуры выбора автоматов. Они нахрапом не меняются.

Ну так сейчас если уже автомат, не исправен. Ведь я ссчитаю, что если взводится с боооольшим усилием, то это неисправность.
elalex писал(а):Источник цитаты 7.Не думаю, что какой электрик или контора знает больше, чем изложено на форуме. Во всяком случае, сначала почитайте с месяц форум, только потом принимайте решение. Иначе лишних расходов не избежать.

Форум этот и соседний читаю больше месяца. Электрика мне интересна и даже нравится, так что читаю, смотрю видео.
Я не электрик :yes:
Аватара пользователя
elalex
Сообщения: 7423
Зарегистрирован: 21 июл 2015, 08:08
Репутация: 591
Откуда: [email protected]
Контактная информация:

Подключение автомата в разрыв линии

Сообщение elalex » 07 апр 2017, 16:53

1.Замурованные коробки можно найти простукиванием. Если тот электрик их делал - пусть покажет, где.
2.К приходу электрика попробуйте максимально подготовиться теоретически, у вас будут тяжёлые электрические споры.
3.УЗО 50А, 100мА, купленный Шнайдер, 3-полюсные автоматы, автоматы TDM в щите, УЗО на линиях придется выбросить.
4.Добавить в каждую фазу реле напряжения с обвязкой, электромеханическое УЗО 30мА типа А.
5.Распредшкаф в гараже или отгородить от гаража стеной, или вообще убрать из гаража.
То, что гараж не сделан - хорошо, не придется переделывать.
6.Ссылка дает только список документов.
7.Нарисуйте, как хотите сделать заземление на улице. В доме есть погреб?
8.У меня есть тема про идиотские пункты ПУЭ. Нужно, чтобы Вы не слепо выполняли правила, а понимали, чем вызваны те или иные требования.
9.Многопроволочные жилы применять ни к чему, достаточно и монолитных.
10.Понимать, что автомат неисправен - 1 этап. 2 этап - узнать, как выбираются автоматы.
11.Дайте фото щита бОльшего разрешения, а то не видно всех надписей. Фото схемы на двери щита, щит счетчика.
Одиночный свободный электрик
Опыт ремонтов квартир 20лет
Высшее электрическое образование
Бывший инженер-электрик
Пенсионер
64 года
Пишу для владельцев частного жилья
Запасной E–mail для россиян: [email protected]
Аватара пользователя
Rustok
Сообщения: 134
Зарегистрирован: 03 апр 2017, 20:02
Репутация: 19
Контактная информация:

Подключение автомата в разрыв линии

Сообщение Rustok » 07 апр 2017, 17:04

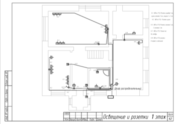
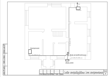
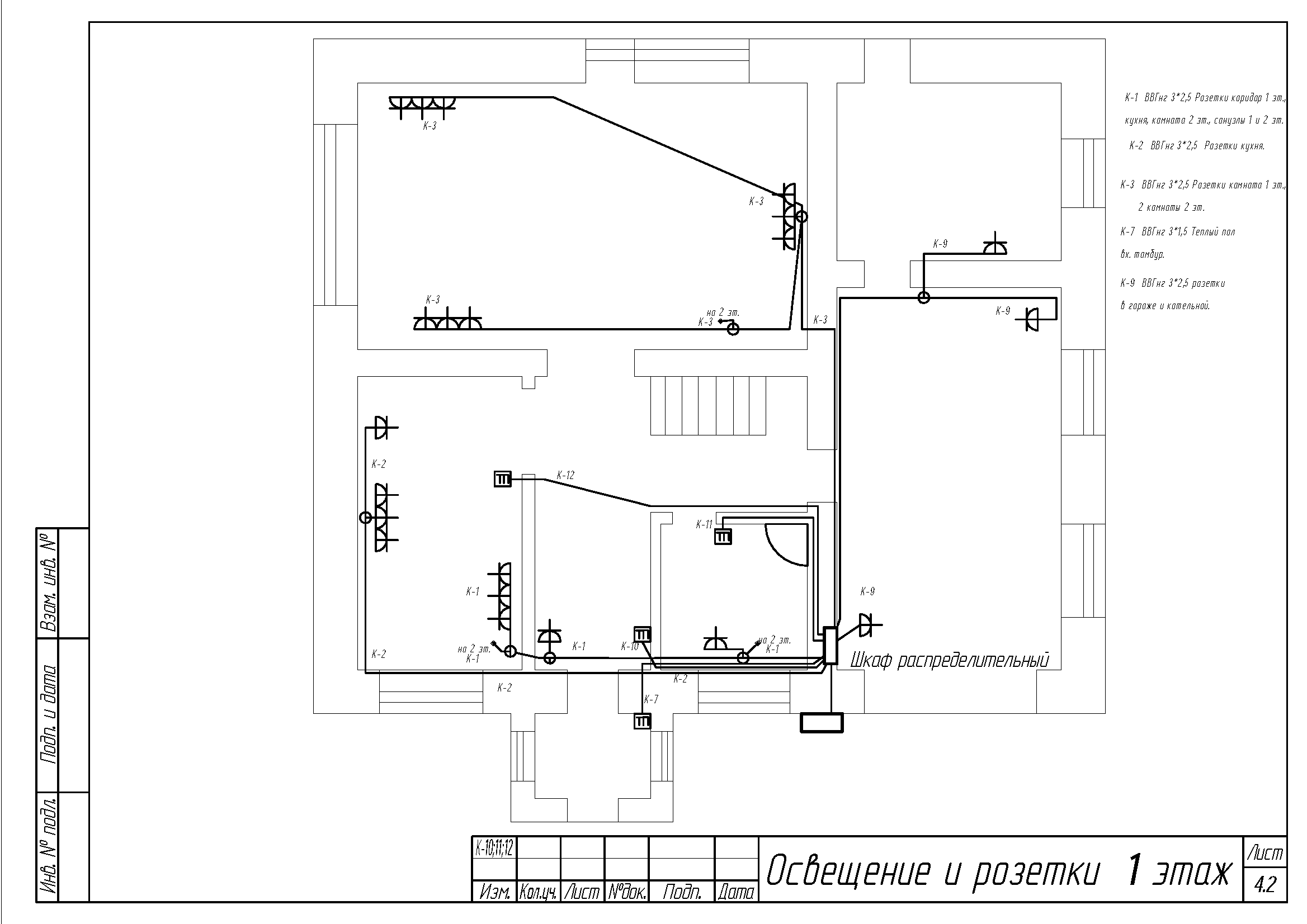
ссылка почему-то побилась. pdf в картинки пересохранил. Проект делал не я, а электрик.
На вопросы ответить смогу либо сегодня поздно вечером, либо только уже завтра
для форума_Страница_5.png
для форума_Страница_6.png
для форума_Страница_4.png
для форума_Страница_2.png
для форума_Страница_3.png
для форума_Страница_9.png
для форума_Страница_8.png
Последний раз редактировалось Rustok 07 апр 2017, 17:12, всего редактировалось 1 раз.
Я не электрик :yes:
Аватара пользователя
elalex
Сообщения: 7423
Зарегистрирован: 21 июл 2015, 08:08
Репутация: 591
Откуда: [email protected]
Контактная информация:

Подключение автомата в разрыв линии

Сообщение elalex » 07 апр 2017, 17:11

Разрешение чертежей плохое, надписей не видно.
Одиночный свободный электрик
Опыт ремонтов квартир 20лет
Высшее электрическое образование
Бывший инженер-электрик
Пенсионер
64 года
Пишу для владельцев частного жилья
Запасной E–mail для россиян: [email protected]
Аватара пользователя
Rustok
Сообщения: 134
Зарегистрирован: 03 апр 2017, 20:02
Репутация: 19
Контактная информация:

Подключение автомата в разрыв линии

Сообщение Rustok » 07 апр 2017, 17:15

Я как-то вижу. Ладно, сейчас ещё вариант . Скачайте
yadi.sk/i/KXDAYIMR3GkUrJ
Я не электрик :yes:
Аватара пользователя
elalex
Сообщения: 7423
Зарегистрирован: 21 июл 2015, 08:08
Репутация: 591
Откуда: [email protected]
Контактная информация:

Подключение автомата в разрыв линии

Сообщение elalex » 07 апр 2017, 17:21

Последняя ссылка не найдена.
Одиночный свободный электрик
Опыт ремонтов квартир 20лет
Высшее электрическое образование
Бывший инженер-электрик
Пенсионер
64 года
Пишу для владельцев частного жилья
Запасной E–mail для россиян: [email protected]
Аватара пользователя
Rustok
Сообщения: 134
Зарегистрирован: 03 апр 2017, 20:02
Репутация: 19
Контактная информация:

Подключение автомата в разрыв линии

Сообщение Rustok » 07 апр 2017, 17:29

Как у меня с другого компа в браузере, где я нигде не залогинен всё открывается? Ничего не понимаю. ответил в личку

и вот архив прикрепил
для форума.rar
(100.84 КБ) 216 скачиваний
Я не электрик :yes:
Аватара пользователя
elalex
Сообщения: 7423
Зарегистрирован: 21 июл 2015, 08:08
Репутация: 591
Откуда: [email protected]
Контактная информация:

Подключение автомата в разрыв линии

Сообщение elalex » 07 апр 2017, 18:06

Просмотреть получилось. Выбирайте систему заземления, отвечайте на вопросы, задавайте вопросы. Делайте фото щитов лучшего разрешения.
Одиночный свободный электрик
Опыт ремонтов квартир 20лет
Высшее электрическое образование
Бывший инженер-электрик
Пенсионер
64 года
Пишу для владельцев частного жилья
Запасной E–mail для россиян: [email protected]
Аватара пользователя
Восток
Сообщения: 850
Зарегистрирован: 30 янв 2016, 18:07
Репутация: 429
Контактная информация:

Подключение автомата в разрыв линии

Сообщение Восток » 07 апр 2017, 23:05

Ну что вам сказать, ошибок в этом проекте много. Вот самые грубые:

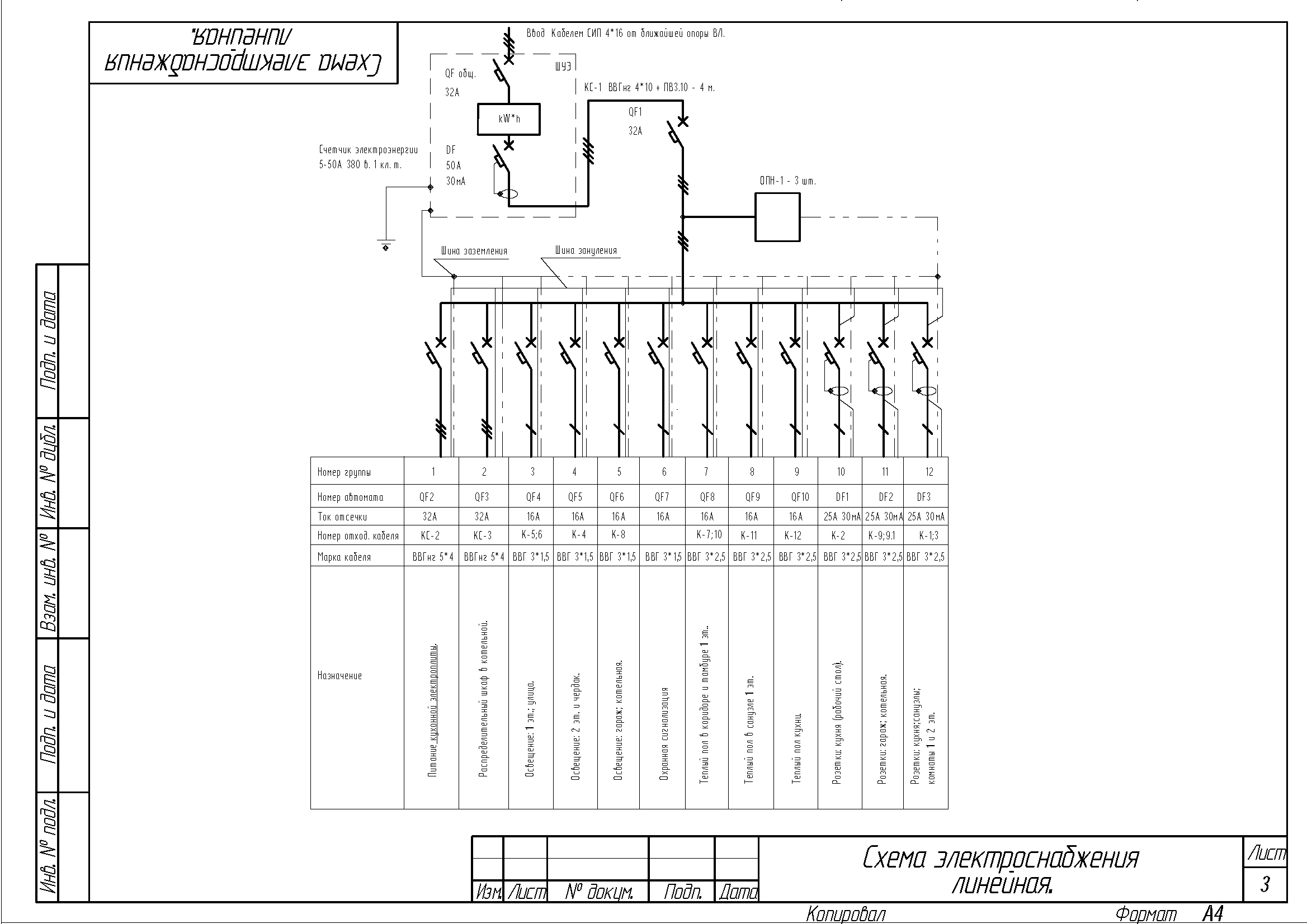
Лист 3 Схема электроснабжения линейная.
1. Не верные номиналы DF 50 А / 30 мА.
ПУЭ
7.1.83.[u] Суммарный ток утечки сети с учетом присоединяемых стационарных и переносных электроприемников в нормальном режиме работы не должен превосходить 1/3 номинального тока УЗО.[/u] При отсутствии данных ток утечки электроприемников следует принимать из расчета 0,4 мА на 1 А тока нагрузки, а ток утечки сети - из расчета 10 мкА на 1 м длины фазного проводника.

Иными словами суммарный ток утечки сети всех проводов и всего присоединенного оборудования не должно быть выше 10-12 мА, а у вас он будет выше что может вызвать ложное срабатывание . Там нужно ставить номинал 50 А /100 мА.

2. Автомат QF4 16 А Освещение 1 этаж ; улица.
Нарушение ПУЭ
6.1.49. Для установок наружного освещения: освещения фасадов зданий, монументов и т.п., наружной световой рекламы и указателей в сетях TN-S или TN-C-S рекомендуется установка УЗО с током срабатывания до 30 мА, при этом фоновое значение токов утечки должно быть, по крайней мере, в 3 раза меньше уставки срабатывания УЗО по дифференциальному току.

Должено стоять УЗО на 30 мА

3. Автомат QF8: QF9; QF10 16 А Теплый пол
Нурушение ГОСТ Р 50571.25-2001
5.3 Основной защитой от поражения электрическим током в электроустановках распределенного электрообогрева является двойная или усиленная изоляция токоведущих частей распределенных электронагревательных элементов (нагревательных и вспомогательных жил электронагревательного кабеля, токоведущих частей монтажных концов, нагревательных пленок, токоведущих элементов электронагревательных пластин). Дополнительной защитой является применение автоматических выключателей дифференциального тока (АВДТ) по ГОСТ 51327.1 и выключателей дифференциального тока (ВДТ) по ГОСТ 51326.1 с металлической оплеткой или с повивом брони электронагревательного кабеля, экранным слоем электронагревательной пленки (пластины) или УВЭП как это показано на рисунке В.6.
Аватара пользователя
кви-45
Сообщения: 714
Зарегистрирован: 25 окт 2015, 20:31
Репутация: 254
Контактная информация:

Подключение автомата в разрыв линии

Сообщение кви-45 » 08 апр 2017, 21:53

Восток писал(а):Источник цитаты 1/3 номинального тока УЗО.[/

Я бы здесь подправил этот пункт ПУЭ так: "1/3 дифференциального номинального тока отключения УЗО", У некоторых бывает путаница.

Уверен в проекте необходимо разработать схемы основной и дополнительной систем уравнивания потенциалов ПУЭ п. 1.7.78.
За электробезопасность необходимо ПЛАТИТЬ,
за ее отсутствие РАСПЛАЧИВАТЬСЯ!
Аватара пользователя
Rustok
Сообщения: 134
Зарегистрирован: 03 апр 2017, 20:02
Репутация: 19
Контактная информация:

Подключение автомата в разрыв линии

Сообщение Rustok » 10 апр 2017, 12:42

Восток писал(а):Источник цитаты 1. Не верные номиналы DF 50 А / 30 мА.

в схеме это пока не отображено, но УЗО на входе уже стоит 50 А /100 мА. В одном из постов выше я это написал. Электрик изначально ставил 50 А / 30 мА и потом не мог понять, почему его вышибало постоянно.
Восток писал(а):Источник цитаты 2. Автомат QF4 16 А Освещение 1 этаж ; улица.

Ага. Вместо автомата нужно ставить УЗО 16А / 30 мА
Восток писал(а):Источник цитаты 3. Автомат QF8: QF9; QF10 16 А Теплый пол

То есть нужены диффавтоматы?

elalex писал(а):Источник цитаты Выбирайте систему заземления, отвечайте на вопросы, задавайте вопросы. Делайте фото щитов лучшего разрешения.

Чуть позже это всё будет. Кстати, электрик в вс так и не пришёл. Позвонил и сказал, что не смог выехать из своего двора, так как грязь

p.s. Нормально так спросил про установку автомата в разрыв))
Я не электрик :yes:
ПАВ
Сообщения: 7647
Зарегистрирован: 13 авг 2015, 19:54
Репутация: 923
Откуда: Одесса
Контактная информация:

Подключение автомата в разрыв линии

Сообщение ПАВ » 10 апр 2017, 13:23

Rustok писал(а):Источник цитаты Ага. Вместо автомата нужно ставить УЗО 16А / 30 мА

Как понимать "вместо"? Вместе, т.к. функции разные вроде.
В жизни все не так, как на самом деле...
Аватара пользователя
Rustok
Сообщения: 134
Зарегистрирован: 03 апр 2017, 20:02
Репутация: 19
Контактная информация:

Подключение автомата в разрыв линии

Сообщение Rustok » 10 апр 2017, 13:26

ПАВ писал(а):Источник цитаты Как понимать "вместо"? Вместе, т.к. функции разные вроде.

Да, был не прав, поторопился. Кстати, я так понял, что УЗО рекомендуется ставить, а не обязуют? но в любом случае, лучше установить
Я не электрик :yes:
Аватара пользователя
TOPMO3
Сообщения: 4181
Зарегистрирован: 29 фев 2016, 10:37
Репутация: 626
Откуда: Ижевск
Контактная информация:

Подключение автомата в разрыв линии

Сообщение TOPMO3 » 10 апр 2017, 16:49

Rustok писал(а):Источник цитаты... Кстати, я так понял, что УЗО рекомендуется ставить, а не обязуют? но в любом случае, лучше установить
Вааще то ПУЭ обязывает ... если (1) автоматы не обеспечивают время отключения менее 0,4 сек.(это Вы не сможете проверить) ... и (2) если отсутствует СУП (редко кто его делает).
Смеюсь последний ... тормоз однако!
Аватара пользователя
Rustok
Сообщения: 134
Зарегистрирован: 03 апр 2017, 20:02
Репутация: 19
Контактная информация:

Подключение автомата в разрыв линии

Сообщение Rustok » 11 апр 2017, 18:01

elalex писал(а):Источник цитаты Делайте фото щитов лучшего разрешения

Сделано
elalex писал(а):Источник цитаты В доме есть погреб?

Нет. И пока не понятно, планируется ли копать
elalex писал(а):Источник цитаты Фото схемы на двери щита

Это есть на линейной схеме Лист 3

Оххх, что я сегодня увидел там... Дело в том, что я внутренности ШУЭ я вижу только второй раз в жизни. Первый раз я увидел, когда включал автомат (я не всматривался в то, что там происходит), а второй раз сейчас... и я что-то офигел от увиденного. Кстати, о том, что там стоит УЗО с током утечки 100mA меня дезинформировали.

То, что на счётчике пробита пломба МРСК - это плохо?
Почему стоит наклейка МРСК на выходе автомата ? Это практикуют чтоли?
F6iN6p5gngA.jpg
rrL6EEUNIfk.jpg
0MTiS_21mr8.jpg


P.S. Что-то мне подсказывает, что тему нужно переносить в другой раздел
Я не электрик :yes:


  • Реклама

Вернуться в «Автоматические выключатели и предохранители»

Кто сейчас на конференции

Сейчас этот форум просматривают: нет зарегистрированных пользователей и 7 гостей