Подскажите по ТТ и TN-C (как заземлить)

Вопросы, связанные с устройством и монтажом заземления и зануления. Системы заземления и системы уравнивания потенциалов (СУП), молниезащита, грозозащита и т.п.
Аватара пользователя
TOPMO3
Сообщения: 4181
Зарегистрирован: 29 фев 2016, 10:37
Репутация: 626
Откуда: Ижевск
Контактная информация:

Подскажите по ТТ и TN-C (как заземлить)

Сообщение TOPMO3 » 28 сен 2019, 08:03

кви-45 писал(а):Источник цитаты
TOPMO3 писал(а):Источник цитаты А если он перепутает ... станок "откажется" работать?

Опять ерунду нарисовали, нельзя так делать.
То ли Вы казустикой занимаетесь, то ли не понимаете о чем шла речь ... про какую "ерунду" и что "так нельзя делать"?
TOPMO3 писал(а):Источник цитаты Предлагаете весь ГОСТ перечитывать ... не судьба (если Вы так уверены, что там такое есть) указать главу или раздел? Лично я не собираюсь искать отсутствующую "кошку".

Забурели вы ТОРМОЗ , подавайте вам все на блюдечке. Смотрите в этом Госте раздел 543.4 там картинки есть понятные.
Опять казустика ...
1. Вы утверждали, что в нормах имеется требование "Насчет повторного заземлителя. Он обязательно нужен по нормам при разделения ПЕН проводника для перехода к системе TN-C-S".
2.Я спросил где такое требование написано ... Вы отсылаете к картинкам для примера к применению ... а где написано само требования для перехода к системе Вы не указали. :hmm:
TOPMO3 писал(а):Источник цитаты Не надо тупить ... к приходящему нулю подключены и автоматы и контур, который в свою очередь заземлен.
Блин здесь действительно затупишь.Как вы считаете , контур в производственном помещение это ПЕН проводник? Я считаю, что к этому заземляющему контуру присоединяется все электрооборудование помещения , а функцию нулевого проводника для отведения рабочего тока выполняет четвертая жила кабеля , этим же проводником зануляется корпус оборудования
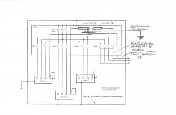
Мде ...я вот осмелился графически обрисовать Ваши слова ... сравните с тем, что я говорил ... там же я задал встречный вопрос ... :wink:
Вложения
00000.jpg
Смеюсь последний ... тормоз однако!
Реклама
Аватара пользователя
кви-45
Сообщения: 714
Зарегистрирован: 25 окт 2015, 20:31
Репутация: 254
Контактная информация:

Подскажите по ТТ и TN-C (как заземлить)

Сообщение кви-45 » 28 сен 2019, 08:31

TOPMO3 писал(а):Источник цитаты Мде ...я вот осмелился графически обрисовать Ваши слова ... сравните с тем, что я говорил ... там же я задал встречный вопрос

Неправильно обрисовали, здесь к каждому оборудованию от Распределительного пункта должен приходить свой кабель, а контур выполняет уравнивание потенциалов.
За электробезопасность необходимо ПЛАТИТЬ,
за ее отсутствие РАСПЛАЧИВАТЬСЯ!
Аватара пользователя
TOPMO3
Сообщения: 4181
Зарегистрирован: 29 фев 2016, 10:37
Репутация: 626
Откуда: Ижевск
Контактная информация:

Подскажите по ТТ и TN-C (как заземлить)

Сообщение TOPMO3 » 28 сен 2019, 08:34

Константин писал(а):Источник цитаты Поэтому TOPMO3, никогда так не делайте. Все корпуса отдельным без коммутации РЕ проводником подключать от шин ГЗШ или РЕ.
О каком РЕ ведете речь?
Изначально, вопрос возник о розетке в производственном помещении с системой TN-C ... где ни PEN_а ни РЕ_на нету.
В данном случае, как аналог, подключение розетки производится как мощная розетка кухни в старой застройке.
Все ручные инструменты оборудованы фильтрами, надо же как то их подключать.
Смеюсь последний ... тормоз однако!
Аватара пользователя
TOPMO3
Сообщения: 4181
Зарегистрирован: 29 фев 2016, 10:37
Репутация: 626
Откуда: Ижевск
Контактная информация:

Подскажите по ТТ и TN-C (как заземлить)

Сообщение TOPMO3 » 28 сен 2019, 08:38

кви-45 писал(а):Источник цитаты
TOPMO3 писал(а):Источник цитаты Мде ...я вот осмелился графически обрисовать Ваши слова ... сравните с тем, что я говорил ... там же я задал встречный вопрос

Неправильно обрисовали, здесь к каждому оборудованию от Распределительного пункта должен приходить свой кабель, а контур выполняет уравнивание потенциалов.
Мде ... я показал общий смысл подключений, а Вам похоже нужна для понимания сути, принципиальная схема ... можете еще указать на последовательность подключений. :biggrin:
Смеюсь последний ... тормоз однако!
Аватара пользователя
Константин
Сообщения: 3464
Зарегистрирован: 16 сен 2015, 10:19
Репутация: 851
Откуда: Новосибирская область
Контактная информация:

Подскажите по ТТ и TN-C (как заземлить)

Сообщение Константин » 28 сен 2019, 08:41

TOPMO3 писал(а):Источник цитаты Мде ...я вот осмелился графически обрисовать Ваши слова ... сравните с тем, что я говорил ... там же я задал встречный вопрос .

У меня вопрос. А что это такое нарисовано? Я щас перечитал написанное. И так понимаю вы друг друга не поняли. Дай TOPMO3, я щас зарисую на твоем рисунке о чем говорит кви-45.
00000 (1).jpg


Не ругайтесь ребята.
Аватара пользователя
TOPMO3
Сообщения: 4181
Зарегистрирован: 29 фев 2016, 10:37
Репутация: 626
Откуда: Ижевск
Контактная информация:

Подскажите по ТТ и TN-C (как заземлить)

Сообщение TOPMO3 » 28 сен 2019, 09:22

Константин писал(а):Источник цитаты
TOPMO3 писал(а):Источник цитаты Мде ...я вот осмелился графически обрисовать Ваши слова ... сравните с тем, что я говорил ... там же я задал встречный вопрос .
У меня вопрос. А что это такое нарисовано?
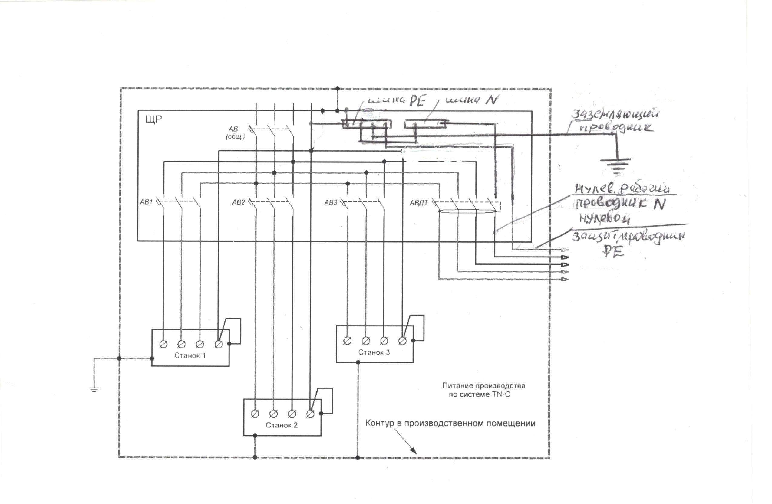
Нарисовано то, что он описал (но не доволен нарисованным :biggrin: ) ... они вдвоем пытаются "впихать невпихуемое" ... путают требования и подключения при разных системах (TN-C-S и TN-C).
С твоей картинкой полностью согласен! :good: Перерисовал, для недовольных, более подробную свою ... :wink:
Вложения
00000.jpg
Смеюсь последний ... тормоз однако!
Аватара пользователя
Константин
Сообщения: 3464
Зарегистрирован: 16 сен 2015, 10:19
Репутация: 851
Откуда: Новосибирская область
Контактная информация:

Подскажите по ТТ и TN-C (как заземлить)

Сообщение Константин » 28 сен 2019, 16:50

TOPMO3 писал(а):Источник цитаты подробную свою

Есть ошибки. Убери перемычки между клеммой N и корпусом оборудования. Проводник РЕ для кабинетов присоедини от ГЗШ Щитовой (РЩ на схеме). Можешь даже присоединить от шины контура вообще не проблема.Только без вот этих отделений на клеммах аппаратов АВДТ.
Аватара пользователя
кви-45
Сообщения: 714
Зарегистрирован: 25 окт 2015, 20:31
Репутация: 254
Контактная информация:

Подскажите по ТТ и TN-C (как заземлить)

Сообщение кви-45 » 28 сен 2019, 16:51

TOPMO3 писал(а):Источник цитаты Перерисовал, для недовольных, более подробную свою

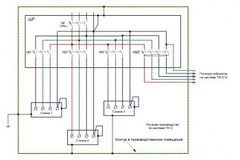
Прекрасная схема в той части, где система TN-C , все как надо , но вот с устройством перевода системы TN-C на систему TN-C-S я опять не согласен. Надо делать , как - то так
Схема ТОРМОЗА.jpeg

Вы же просто разветвили РЕН на две ветви и все. Каждая из них будет находится под одним напряжение и при замыкании УЗО может не сработать , но самое главное при КЗ напряжение прикосновения не будет снижаться , куда ему стекать повторного заземлителя у вас нет
За электробезопасность необходимо ПЛАТИТЬ,
за ее отсутствие РАСПЛАЧИВАТЬСЯ!
Аватара пользователя
TOPMO3
Сообщения: 4181
Зарегистрирован: 29 фев 2016, 10:37
Репутация: 626
Откуда: Ижевск
Контактная информация:

Подскажите по ТТ и TN-C (как заземлить)

Сообщение TOPMO3 » 28 сен 2019, 18:37

Константин писал(а):Источник цитаты
TOPMO3 писал(а):Источник цитаты подробную свою

Есть ошибки. Убери перемычки между клеммой N и корпусом оборудования. Проводник РЕ для кабинетов присоедини от ГЗШ Щитовой (РЩ на схеме). Можешь даже присоединить от шины контура вообще не проблема.Только без вот этих отделений на клеммах аппаратов АВДТ.
Эта схема описывает следующее сообщение ...
кви-45 писал(а):Как вы считаете , контур в производственном помещение это ПЕН проводник? Я считаю, что к этому заземляющему контуру присоединяется все электрооборудование помещения , а функцию нулевого проводника для отведения рабочего тока выполняет четвертая жила кабеля , этим же проводником зануляется корпус оборудования
... и показывает все связи, сказанные там.
Она ничем не отличается от той которую я выкладывал в начале темы.
На принципиальных схемах никогда не рисуют ни фазные шинки ни тем более шины контура.
Все эти точки соединений, на монтажной схеме, объединяются на соответствующих шинках и клеммах.
Ошибками на схемах называются когда это может привести к какой нить проблеме ... какие ошибки можете назвать?
Смеюсь последний ... тормоз однако!
Аватара пользователя
TOPMO3
Сообщения: 4181
Зарегистрирован: 29 фев 2016, 10:37
Репутация: 626
Откуда: Ижевск
Контактная информация:

Подскажите по ТТ и TN-C (как заземлить)

Сообщение TOPMO3 » 28 сен 2019, 18:45

кви-45 писал(а):Источник цитаты ... но вот с устройством перевода системы TN-C на систему TN-C-S я опять не согласен. Надо делать , как - то так
Схема ТОРМОЗА.jpeg

Вы же просто разветвили РЕН на две ветви и все. Каждая из них будет находится под одним напряжение и при замыкании УЗО может не сработать , но самое главное при КЗ напряжение прикосновения не будет снижаться , куда ему стекать повторного заземлителя у вас нет
Ну вот опять глупость понаписали!
Вы же просто разветвили РЕН на две ветви и все.
А что надо было сделать?
Каждая из них будет находится под одним напряжение и при замыкании УЗО может не сработать ,
Это надо бы в анналы записать ... даже не верится, что написано не простым обывателем.
но самое главное при КЗ напряжение прикосновения не будет снижаться , куда ему стекать повторного заземлителя у вас нет
Вам не достаточно заземления которое присутствует на схеме в левой части? :biggrin:
Смеюсь последний ... тормоз однако!
Аватара пользователя
Константин
Сообщения: 3464
Зарегистрирован: 16 сен 2015, 10:19
Репутация: 851
Откуда: Новосибирская область
Контактная информация:

Подскажите по ТТ и TN-C (как заземлить)

Сообщение Константин » 28 сен 2019, 19:26

TOPMO3 писал(а):Источник цитаты и показывает все связи, сказанные там.

аааа...Ну яж говорил, что вас уже не туда понесло.
TOPMO3 писал(а):Источник цитаты На принципиальных схемах никогда не рисуют ни фазные шинки ни тем более шины контура.

Очень жаль.Отсутствия каких элементов крайне представляет другое восприятие. Типо не отображено значит отсутствует.
TOPMO3 писал(а):Источник цитаты Ошибками на схемах называются когда это может привести к какой нить проблеме ... какие ошибки можете назвать?

Константин писал(а):Источник цитаты перемычки между клеммой N и корпусом оборудования.

Некоторые опасные причины описывал сегодня чуть выше.
Константин писал(а):Источник цитаты Тут не КЗ тут опасный потенциал

Дополню менее. Если вы сохраните такую перемычку то защищать такое оборудование диф. защитой будет невозможно при необходимости.Такого рода перемычки нарушают схему включения в сеть диф. защиты.Она попросту будет отключаться так как имитируется утечка на землю по этой перемычки.
Аватара пользователя
кви-45
Сообщения: 714
Зарегистрирован: 25 окт 2015, 20:31
Репутация: 254
Контактная информация:

Подскажите по ТТ и TN-C (как заземлить)

Сообщение кви-45 » 28 сен 2019, 19:47

TOPMO3 писал(а):Источник цитаты даже не верится, что написано не простым обывателем.

Вы меня тоже удивили.
За электробезопасность необходимо ПЛАТИТЬ,
за ее отсутствие РАСПЛАЧИВАТЬСЯ!
Аватара пользователя
TOPMO3
Сообщения: 4181
Зарегистрирован: 29 фев 2016, 10:37
Репутация: 626
Откуда: Ижевск
Контактная информация:

Подскажите по ТТ и TN-C (как заземлить)

Сообщение TOPMO3 » 28 сен 2019, 19:47

Константин писал(а):Источник цитатыДополню менее. Если вы сохраните такую перемычку то защищать такое оборудование диф. защитой будет невозможно при необходимости.Такого рода перемычки нарушают схему включения в сеть диф. защиты.Она попросту будет отключаться так как имитируется утечка на землю по этой перемычки.
Опять 25 ... Вы сэр забыли уже, что при TN-C дифзащита запрещена и что это подключение в производственном помещении ... выше обсуждали ведь!.
Смеюсь последний ... тормоз однако!
Аватара пользователя
Константин
Сообщения: 3464
Зарегистрирован: 16 сен 2015, 10:19
Репутация: 851
Откуда: Новосибирская область
Контактная информация:

Подскажите по ТТ и TN-C (как заземлить)

Сообщение Константин » 28 сен 2019, 19:55

TOPMO3 писал(а):Источник цитаты Опять 25 ... Вы сэр забыли уже, что при TN-C дифзащита запрещена

Допускается. Нет полного запрета. В нормативе даже описано как это сделать. Процетирую "В случае необходимости применения УЗО для защиты отдельных электроприемников, получающих питание от системы TN-C, защитный РЕ-проводник электроприемника должен быть подключен к PEN-проводнику цепи, питающей электроприемник, до защитно-коммутационного аппарата."
Заметь я ведь не говорил, что диф. защиту применять при TN-C нельзя.
Аватара пользователя
TOPMO3
Сообщения: 4181
Зарегистрирован: 29 фев 2016, 10:37
Репутация: 626
Откуда: Ижевск
Контактная информация:

Подскажите по ТТ и TN-C (как заземлить)

Сообщение TOPMO3 » 28 сен 2019, 20:16

Константин писал(а):Источник цитатыДопускается. Нет полного запрета. В нормативе даже описано как это сделать. Процетирую "В случае необходимости применения УЗО для защиты отдельных электроприемников, получающих питание от системы TN-C, защитный РЕ-проводник электроприемника должен быть подключен к PEN-проводнику цепи, питающей электроприемник, до защитно-коммутационного аппарата."
А вот теперя вдумайся в процитированное тобой ... названия PEN и РЕ появляются после "деления", до коммутации ... значит оттуда начинается уже TN-C-S, т.е. разработчики нормативки понимают, что при TN-C, невозможна дифзащита! :yes:
Заметь я ведь не говорил, что диф. защиту применять при TN-C нельзя.
А я спокойно говорю ... потому что это не возможно. :wink:
Смеюсь последний ... тормоз однако!
ПАВ
Сообщения: 7647
Зарегистрирован: 13 авг 2015, 19:54
Репутация: 923
Откуда: Одесса
Контактная информация:

Подскажите по ТТ и TN-C (как заземлить)

Сообщение ПАВ » 28 сен 2019, 20:36

А где ваш главный оппонент по системам?
В жизни все не так, как на самом деле...
Аватара пользователя
Константин
Сообщения: 3464
Зарегистрирован: 16 сен 2015, 10:19
Репутация: 851
Откуда: Новосибирская область
Контактная информация:

Подскажите по ТТ и TN-C (как заземлить)

Сообщение Константин » 28 сен 2019, 20:38

TOPMO3 писал(а):Источник цитаты А вот теперя вдумайся в процитированное тобой ... названия PEN и РЕ появляются после "деления", до коммутации ... значит оттуда начинается уже TN-C-S, т.е. разработчики нормативки понимают, что при TN-C, невозможна дифзащита!

Не. Название PEN и РЕ появляются не до деления не после деления.(PEN-проводником) называют в многофазных цепях в системе TN для стационарно проложенных кабелей, жилы которых имеют площадь поперечного сечения не менее 10 мм2 по меди или 16 мм2 по алюминию, функции нулевого защитного (РЕ) и нулевого рабочего (N) проводников могут быть совмещены в одном проводнике (PEN-проводник).
Проще выражаясь. Провод подключенный к глухозаземленной нейтрали сечением не менее 10 мм2 по меди или 16 мм2 по алюминию по которому будут протекать рабочие токи в момент работы электроустановки одновременно выполняющий функции РЕ проводника а именно формирование токов короткого замыкания в случаи соприкосновения токопроводящих частей на корпус оборудования.
РЕ-Это защитный проводник по которому в нормальном режиме работы токи не протекают. И его сечение не привязано к минимальным требованиям в отличие от PEN. Равносильное к фазному удовлетворяет требованиям к РЕ.

TOPMO3 писал(а):Источник цитаты потому что это не возможно.

Возможна :wink: Если система электропитания 4х проводная и 2х проводная для напряжений 400/220 то прокладывать отдельно РЕ никто не запрещал.О том же толкуют нормативы.
Аватара пользователя
Константин
Сообщения: 3464
Зарегистрирован: 16 сен 2015, 10:19
Репутация: 851
Откуда: Новосибирская область
Контактная информация:

Подскажите по ТТ и TN-C (как заземлить)

Сообщение Константин » 28 сен 2019, 20:38

ПАВ писал(а):Источник цитаты А где ваш главный оппонент по системам?

Ты про ТС? Ушел в себя по ходу.
ПАВ
Сообщения: 7647
Зарегистрирован: 13 авг 2015, 19:54
Репутация: 923
Откуда: Одесса
Контактная информация:

Подскажите по ТТ и TN-C (как заземлить)

Сообщение ПАВ » 28 сен 2019, 20:40

Неее, elalex !
В жизни все не так, как на самом деле...
Аватара пользователя
TOPMO3
Сообщения: 4181
Зарегистрирован: 29 фев 2016, 10:37
Репутация: 626
Откуда: Ижевск
Контактная информация:

Подскажите по ТТ и TN-C (как заземлить)

Сообщение TOPMO3 » 28 сен 2019, 20:47

Константин писал(а):Источник цитаты
TOPMO3 писал(а):Источник цитаты потому что это не возможно.

Возможна :wink: Если система электропитания 4х проводная и 2х проводная для напряжений 400/220 то прокладывать отдельно РЕ никто не запрещал.О том же толкуют нормативы.
А откель тама РЕ?
Разве РЕ не рождается в муках "деления" ... а если так ... то как система могет потом продолжать называться TN-C !!!
Смеюсь последний ... тормоз однако!


  • Реклама

Вернуться в «Заземление и молниезащита»

Кто сейчас на конференции

Сейчас этот форум просматривают: нет зарегистрированных пользователей и 8 гостей