Об опасности применения бездисплейных реле напряжения

Выбор и схемы подключения контакторов, пускателей, реле, различных датчиков, кнопок управления, переключателей и т.п.
Аватара пользователя
TOPMO3
Сообщения: 4181
Зарегистрирован: 29 фев 2016, 10:37
Репутация: 626
Откуда: Ижевск
Контактная информация:

Об опасности применения бездисплейных реле напряжения

Сообщение TOPMO3 » 15 фев 2017, 15:41

oleinap писал(а):Источник цитатывот
elalex писал(а):Источник цитаты
Вы не поняли ситуацию обрыва ноля в TN-C-S. В этой системе при обрыве ноля в сеть РЕ ВЫДАЕТСЯ опасное напряжение, которое расходится по всем потребителям на их корпуса. Никакая изоляция нигде не пробивается, пробиваются люди, касающиеся корпусов своих приборов.

а их корпуса НЕ заземлены...
И причем тут система IT ... IT система - разрешена к использованию, а Вам пишут про аварийные ситуации ... эти ситуации никак не называются. :fool:
Смеюсь последний ... тормоз однако!
Реклама
Аватара пользователя
elalex
Сообщения: 7423
Зарегистрирован: 21 июл 2015, 08:08
Репутация: 591
Откуда: [email protected]
Контактная информация:

Об опасности применения бездисплейных реле напряжения

Сообщение elalex » 15 фев 2017, 17:23

oleinap:
1.Чьи корпуса не заземлены?
2.Не могли бы продемонстрировать своё знание ПУЭ и процитировать определения систем ТN и IТ?
Одиночный свободный электрик
Опыт ремонтов квартир 20лет
Высшее электрическое образование
Бывший инженер-электрик
Пенсионер
64 года
Пишу для владельцев частного жилья
Запасной E–mail для россиян: [email protected]
Аватара пользователя
oleinap
Сообщения: 138
Зарегистрирован: 13 май 2016, 12:07
Репутация: 5
Контактная информация:

Об опасности применения бездисплейных реле напряжения

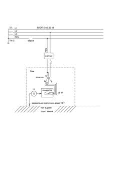
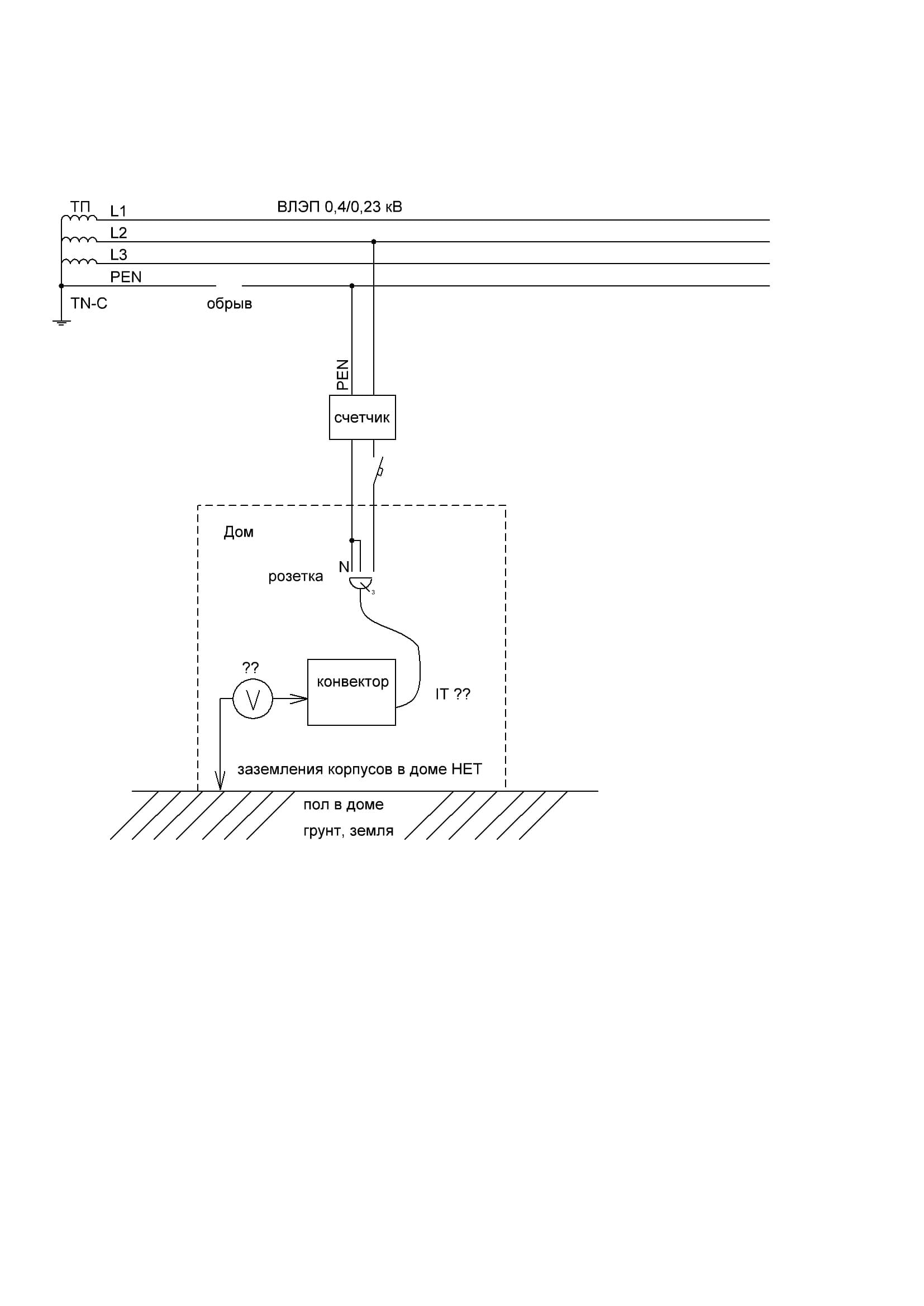
Сообщение oleinap » 18 фев 2017, 21:39

elalex, вот эти
схема отрыва N.JPG
ПАВ
Сообщения: 7647
Зарегистрирован: 13 авг 2015, 19:54
Репутация: 923
Откуда: Одесса
Контактная информация:

Об опасности применения бездисплейных реле напряжения

Сообщение ПАВ » 18 фев 2017, 21:49

А зачем конвектор именно так "заземлять" ? С каких пор в конвекторе/бойлере и проч. один из выводов нагревателя соединен с корпусом, а не изолирован? Если такое допустить, то и обрыв ноля не нужен, достаточно вилку в розетке перевернуть, и ...вытянутые ноги укажут направление выноса тела...
В жизни все не так, как на самом деле...
Аватара пользователя
oleinap
Сообщения: 138
Зарегистрирован: 13 май 2016, 12:07
Репутация: 5
Контактная информация:

Об опасности применения бездисплейных реле напряжения

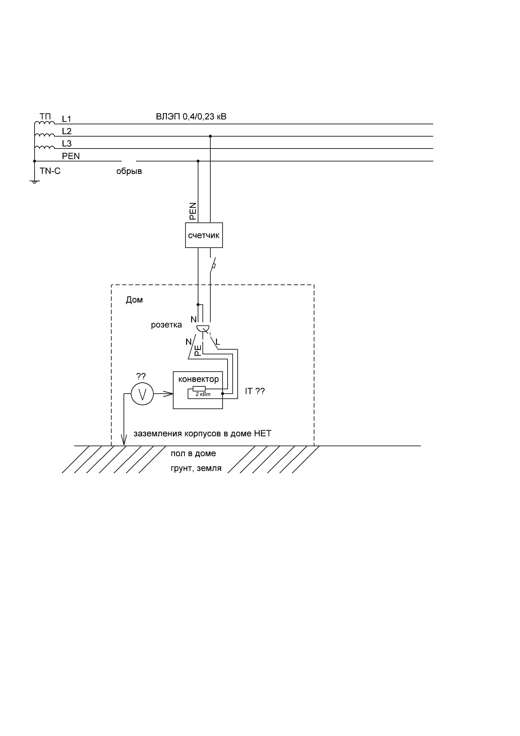
Сообщение oleinap » 18 фев 2017, 21:53

ПАВ писал(а):Источник цитаты А зачем конвектор именно так "заземлять" ? С каких пор в конвекторе/бойлере и проч. один из выводов нагревателя соединен с корпусом, а не изолирован? Если такое допустить, то и обрыв ноля не нужен, достаточно вилку в розетке перевернуть, и ...вытянутые ноги укажут направление выноса тела...

нигде так не видел... силовые цепи изолированы от корпуса, корпус ж/з проводом на заземляющий контакт вилки, дальше в розетке...
или я Вас не понимаю...
Аватара пользователя
oleinap
Сообщения: 138
Зарегистрирован: 13 май 2016, 12:07
Репутация: 5
Контактная информация:

Об опасности применения бездисплейных реле напряжения

Сообщение oleinap » 18 фев 2017, 21:56

можент я что недорисовал...так понятнее?
схема отрыва N.JPG

таки в доме какая система заземления в таком аварийном режиме?
Аватара пользователя
elalex
Сообщения: 7423
Зарегистрирован: 21 июл 2015, 08:08
Репутация: 591
Откуда: [email protected]
Контактная информация:

Об опасности применения бездисплейных реле напряжения

Сообщение elalex » 19 фев 2017, 02:34

1.Система заземления потребителя не меняет своё название при переходе из рабочего режима в аварийный.
2.Система TN-C – городская, в деревнях её нет. В ней деление РЕN на РЕ и N происходит в этажном щите, а заводить РЕN в квартиру запрещено. Другими словами, делят РЕN в розетках скоты.
В деревнях при TN-C-S заводят РЕN в счётчик, сразу после счётчика РЕN заземляют и делят. Если не заземляют и делят в розетках – спросите о типе такой системы заземления у её авторов.
Вообще вытворять с проводами можно что угодно. И что, каждый раз спрашивать, что это получилось? Так мой знакомый мальчик залетал в Google Earth чёрт знает куда, а потом спрашивал свою маму: куда это я попал?
Одиночный свободный электрик
Опыт ремонтов квартир 20лет
Высшее электрическое образование
Бывший инженер-электрик
Пенсионер
64 года
Пишу для владельцев частного жилья
Запасной E–mail для россиян: [email protected]
ПАВ
Сообщения: 7647
Зарегистрирован: 13 авг 2015, 19:54
Репутация: 923
Откуда: Одесса
Контактная информация:

Об опасности применения бездисплейных реле напряжения

Сообщение ПАВ » 19 фев 2017, 09:11

oleinap писал(а):Источник цитаты корпус ж/з проводом на заземляющий контакт вилки, дальше в розетке...


Правильно- а дальше куда- на х/з какую нейтраль или таки на землю нормальную, причем так, что нельзя никак иначе! Ваша схема включения начисто исключает включение вилки навыворот и подачу фазы на корпус всегда? Насколько я себе представляю наши вилки и розетки евроформата, повернуть вилку иначе ничто не мешает, или я не все еще видел? Я бы еще согласился, примени вот ту черную вилку, что слева- точно на дурака, любого- захочет, не воткнет иначе, а пока- риск и рулетка...
Вложения
DSCF2195.JPG
В жизни все не так, как на самом деле...
Аватара пользователя
TOPMO3
Сообщения: 4181
Зарегистрирован: 29 фев 2016, 10:37
Репутация: 626
Откуда: Ижевск
Контактная информация:

Об опасности применения бездисплейных реле напряжения

Сообщение TOPMO3 » 19 фев 2017, 11:34

oleinap писал(а):Источник цитаты таки в доме какая система заземления в таком аварийном режиме?
Эта система называется аварийная ... перестаньте плиз, марать, об такую фигню, благородное имя, разрешенной и безопасной системы IT. :diablo:
Смеюсь последний ... тормоз однако!
Аватара пользователя
oleinap
Сообщения: 138
Зарегистрирован: 13 май 2016, 12:07
Репутация: 5
Контактная информация:

Об опасности применения бездисплейных реле напряжения

Сообщение oleinap » 19 фев 2017, 21:03

ПАВ писал(а):Источник цитаты Ваша схема включения начисто исключает включение вилки навыворот и подачу фазы на корпус всегда?

не понимаю, о чем Вы? http://planetolog.ru/images/plug/F.jpg
если вилку перевернуть в розетке, то где будет подача фазы на корпус?
Вас наверное смутило - я в схеме поставил на проводах от розетки L и N :blush:
elalex писал(а):Источник цитаты В деревнях при TN-C-S заводят РЕN в счётчик, сразу после счётчика РЕN заземляют и делят.

при переделке электрики - да. А в старых домах, где до сих пор на стене панель с индуктивным счетчиком и пробками - не уверен, скорее всего нет.
Аватара пользователя
mastervictor
Сообщения: 4494
Зарегистрирован: 23 июл 2015, 08:50
Репутация: 508
Откуда: Краснодар(почти)
Контактная информация:

Об опасности применения бездисплейных реле напряжения

Сообщение mastervictor » 21 фев 2017, 10:42

oleinap писал(а):Источник цитаты при переделке электрики - да. А в старых домах,

Кого вы слушаете?!
Сельская-городская,русская-не русская,электрики 1 или 2 мира!
Вложения
фейспалм.jpg
фейспалм.jpg (3.57 КБ) 4037 просмотров
Нет ничего невозможного,необходимо две вещи,время и деньги!(Я :hi: )
Я отношусь к людям так,как они относятся ко мне!(Я :hi: )
Аватара пользователя
elalex
Сообщения: 7423
Зарегистрирован: 21 июл 2015, 08:08
Репутация: 591
Откуда: [email protected]
Контактная информация:

Об опасности применения бездисплейных реле напряжения

Сообщение elalex » 21 май 2018, 02:39

Меандр понял свою ошибку и стал выпускать усовершенствованные УЗМ-50Ц с дисплеем и интересным набором технических характеристик.
Одиночный свободный электрик
Опыт ремонтов квартир 20лет
Высшее электрическое образование
Бывший инженер-электрик
Пенсионер
64 года
Пишу для владельцев частного жилья
Запасной E–mail для россиян: [email protected]
Аватара пользователя
Константин
Сообщения: 3464
Зарегистрирован: 16 сен 2015, 10:19
Репутация: 851
Откуда: Новосибирская область
Контактная информация:

Об опасности применения бездисплейных реле напряжения

Сообщение Константин » 21 май 2018, 14:57

Не которые их изделия брать лучше не стоит.


  • Реклама

Вернуться в «Контакторы, пускатели, реле, датчики, кнопки и т.п.»

Кто сейчас на конференции

Сейчас этот форум просматривают: нет зарегистрированных пользователей и 10 гостей